Vente Appartement 94350, Villiers-sur-Marne france 245 000 €
Descriptif du bien
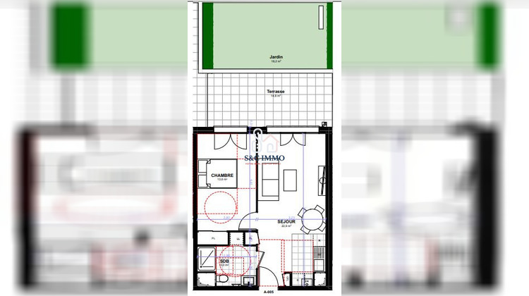
Découvrez ce magnifique appartement T2 neuf, construit en 2027, offrant une surface habitable de 41,50 m². Ce bien immobilier allie modernité et confort pour vous offrir un cadre de vie exceptionnel.
Imaginez-vous dans un espace lumineux et bien agencé, composé de 2 pièces principales, dont une chambre spacieuse et un salon ouvert sur une cuisine équipée. La terrasse de 15 m² vous invite à profiter des beaux jours en plein air, tandis que le jardin privatif de 18,20 m² ajoute une touche de verdure à votre quotidien.
Le stationnement intérieur sécurisé garantit la tranquillité d'esprit pour votre véhicule. Cet appartement allie fonctionnalité et élégance, faisant de chaque moment passé chez vous une expérience agréable.
Ne manquez pas l'opportunité de vivre dans un environnement où chaque détail a été pensé pour votre bien-être. Contactez-nous dès maintenant et laissez-vous séduire par ce joyau immobilier.
À proximité, vous trouverez plusieurs commodités pratiques pour faciliter votre quotidien.
Dans une copropriété de 33 lots. Aucune procédure n'est en cours. Non soumis au DPE. Les informations sur les risques auxquels ce bien est exposé sont disponibles sur le site Géorisques : georisques.gouv.fr.
Votre conseiller S&C Immo : Contact Il S&C
Agent commercial (Entreprise individuelle)
- Type de bien : Appartement
- Surface : 41 m²
- Localisation : France - ile-de-france - Val de Marne
- Ville : Villiers-sur-Marne
- Code postal : 94350
- Annonce créée le 06/02/2026





