Vente Appartement 94350, Villiers-sur-Marne france 519 000 €
Descriptif du bien
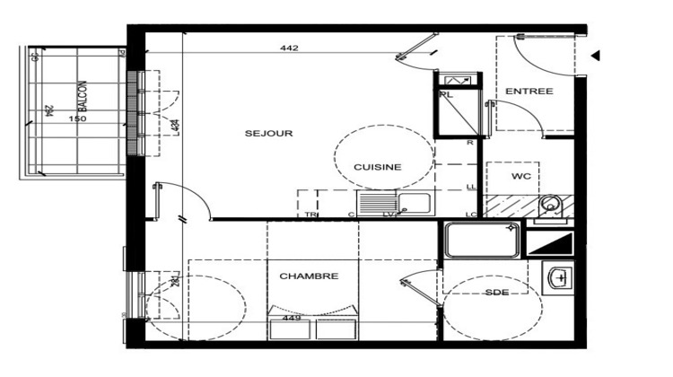
Penthouse d'exception à Villiers-sur-Marne : 4 pièces de 93 m2 avec terrasse panoramique de 80 m2
Situé au 4ème et dernier étage, la surface habitable est organisée comme suit :
- Un séjour-cuisine cathédrale de plus de 31 m2, baigné de lumière, s'ouvrant par de larges baies vitrées sur une terrasse spectaculaire de 79,61 m2. Ce véritable jardin suspendu entoure l'appartement,
-Côté nuit, l'agencement privilégie le volume et l'intimité :
- 1 suite parentale près de 19 m2, avec salle d'eau privative et place pour des rangements
- 2 autres chambres confortables (près de 10 m2 chacune), parfaites pour des enfants ou un espace bureau.
- 1 salle de bains et 1 salle de douche) pour un quotidien fluide, ainsi que des WC séparés.
- 2 places de parking complètent ce bien
Un cadre de vie privilégié, a quelques quelques minutes à pied du centre-ville de Villiers-sur-Marne et de la gare RER E, vous profitez d'une connexion directe à Paris (Haussmann-Saint-Lazare en 25 min) et de l'arrivée future de la ligne 15 du Grand Paris Express.
Commerces au pied de l'immeuble, gymnase Léo Lagrange et cabinet médical complètent ce cadre de vie idéal.
Prestations haut de gamme, isolation thermique renforcée (normes récentes) et calme absolu en dernier étage.
Prêt pour le coup de coeur ? Contactez L'Atelier du 9 pour découvrir les plans détaillés et réserver votre visite de ce bien hors norme.
Frais de notaire réduits Pas de frais d'agence Photos non contractuelles
- Type de bien : Appartement
- DPE : B - 51 à 90 kWh/².an
- GES : B - 6 à 10 kg eq CO2/².an
- Surface : 93 m²
- Localisation : France - ile-de-france - Val de Marne
- Ville : Villiers-sur-Marne
- Code postal : 94350
- Annonce créée le 14/01/2026





