Vente Appartement 69100, VILLEURBANNE france 290 000 €
Descriptif du bien
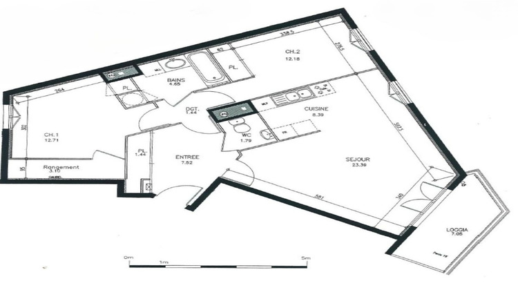
VILLEURBANNE - Avenue Auguste Blanqui. A proximité de toutes les commodités. Cet appartement T3 d'une superficie d'environ 76 m² se situe au 6ème étage d'une résidence de 2006. Il se compose : - d'une entrée avec grand rangement - d'un séjour avec cuisine ouverte de 31 m² - d'un balcon de 7 m² - de deux chambres d'environ 12 m² chacune avec placards - d'une salle de bains - d'un WC indépendant Un garage en sous-sol complète ce bien. Chauffage individuel électrique. Charges annuelles : 1 596 euros. Ses atouts : Emplacement, proche commerces, ligne de bus au pied de l'immeuble, étage élevé, balcon et garage. Copropriété de 78 lots - dont 39 lots habitation. Charges annuelles : 1596 euros.
- Type de bien : Appartement
- DPE : C - 91 à 150 kWh/².an
- GES : A -< 6 kg eq CO2/².an
- Surface : 76 m²
- Localisation : France - Auvergne-Rhône-Alpes - Rhône
- Ville : VILLEURBANNE
- Code postal : 69100
- Annonce créée le 17/03/2026







