Vente Appartement 06270, VILLENEUVE LOUBET france 320 000 €
Descriptif du bien
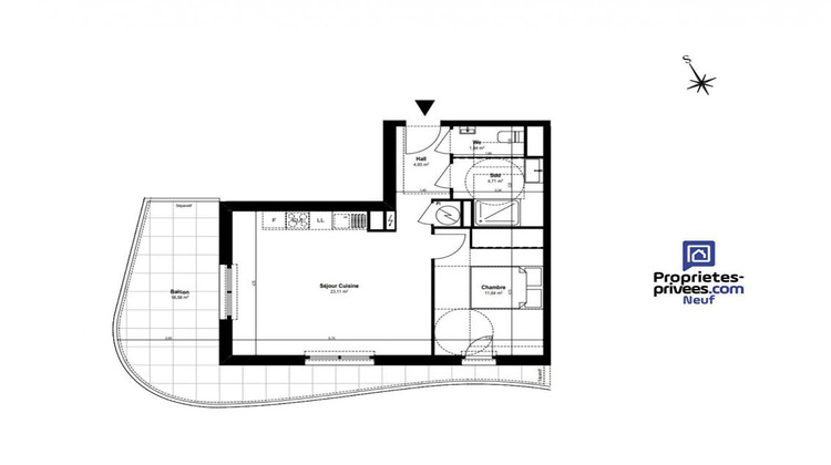
Je vous propose ce superbe 2 pièces au sein d'une résidence élégante, nichée entre mer et nature. Son architecture fluide et contemporaine s'intègre parfaitement au paysage azuréen. Vous profiterez d'un spacieux séjour avec cuisine ouverte et grande baie vitrée pour une luminosité optimale, ainsi que d'une terrasse généreuse de 18 m² offrant une vue dégagée. La résidence, aux prestations haut de gamme, est idéalement située : à 6 minutes à vélo de la plage de la Fighière, à 4 minutes du Parc de Vaugrenier, à proximité immédiate des commerces et des transports, avec un accès rapide à l'A8, Sophia Antipolis et Nice. Prestations de dernière génération . Disponible à partir d'avril 2027. Lot A107 Prix : 320 000 euros Honoraires à la charge du vendeur DPE non requis - Performance énergétique RT2020 Pour visiter et vous accompagner dans votre projet, contactez Sandrine MARSEGUERRA, au 0615457121 ou par courriel à s.marseguerra@proprietes-privees.com Selon l'article L.561.5 du Code Monétaire et Financier, pour l'organisation de la visite, la présentation d'une pièce d'identité vous sera demandée. Cette vente est garantie 12 mois. Cette présente annonce a été rédigée sous la responsabilité éditoriale de Sandrine MARSEGUERRA agissant sous le statut d'agent commercial immatriculé au RSAC Antibes 983 292 483 auprès de la SAS PROPRIETES PRIVEES, au capital de 40 000 euros, ZAC LE CHÊNE FERRÉ - 44 ALLÉE DES CINQ CONTINENTS 44120 VERTOU; SIRET 487 624 777 00040, RCS Nantes. Carte professionnelle Transactions sur immeubles et fonds de commerce (T) et Gestion immobilière (G) n° CPI 4401 2016 000 010 388 délivrée par la CCI Nantes - Saint Nazaire. Compte séquestre n°30932508467 BPA SAINT-SEBASTIEN-SUR-LOIRE (44230) ; Garantie GALIAN - 89 rue de la Boétie, 75008 Paris - n°28137 J pour 2 000 000 euros pour T et 120 000 euros pour G. Assurance responsabilité civile professionnelle par MMA Entreprise n° de police 120.137.405 Mandat réf : 402127- Le professionnel garantit et sécurise votre projet immobilier. Sandrine MARSEGUERRA (EI) Agent Commercial - Numéro RSAC : Antibes 983 292 483 - .
- Type de bien : Appartement
- Surface : 46 m²
- Localisation : France - provence-alpes-cote-d-azur - Alpes Maritimes
- Ville : VILLENEUVE LOUBET
- Code postal : 06270
- Annonce créée le 05/04/2025


