Vente Appartement 33140, Villenave-d'Ornon france 299 000 €
Descriptif du bien
APPARTEMENT EN DERNIER ÉTAGE AVEC GRANDE TERRASSE VILLENAVE D'ORNON
Dans un quartier recherché de Villenave d'Ornon, découvrez ce bel appartement 3 pièces situé en attique d'une résidence intimiste au design contemporain.
Emplacement idéal : à deux pas du tramway, proche de tous les commerces, écoles (de la maternelle au lycée), infrastructures sportives, espaces verts et même d'un musée tout est accessible à pied pour une vie pratique et agréable au quotidien.
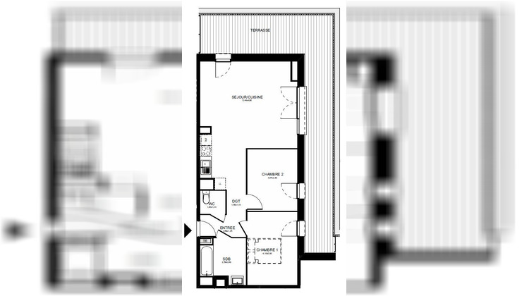
L'appartement comprend une entrée avec rangements, un séjour/cuisine lumineux grâce à sa double exposition, deux chambres, une salle de bains ainsi qu'un WC indépendant.
Atout majeur : toutes les pièces donnent accès à une grande terrasse sans vis-à-vis, offrant un véritable espace extérieur, idéal pour profiter des beaux jours en toute tranquillité.
Une place de stationnement privative et sécurisée complète ce bien.
Un bien rare, parfait en résidence principale comme en investissement locatif, alliant calme résidentiel et vie de quartier dynamique.
APPARTEMENT EN DERNIER ÉTAGE AVEC GRANDE TERRASSE VILLENAVE D'ORNON
Honoraires à la charge du vendeur. Dans une copropriété de 26 lots. Aucune procédure n'est en cours. DPE en cours. Les informations sur les risques auxquels ce bien est exposé sont disponibles sur le site Géorisques : georisques.gouv.fr.
Votre conseiller RH Patrimoine : Marc VEYRET
Agent commercial (Entreprise individuelle)
- Type de bien : Appartement
- Surface : 64 m²
- Localisation : France - Nouvelle-Aquitaine - Gironde
- Ville : Villenave-d'Ornon
- Code postal : 33140
- Annonce créée le 24/10/2025



