Vente Appartement 91140, Villejust france 61 500 €
Descriptif du bien
Spécial Investisseur Exclusivité Forom® Immobilier
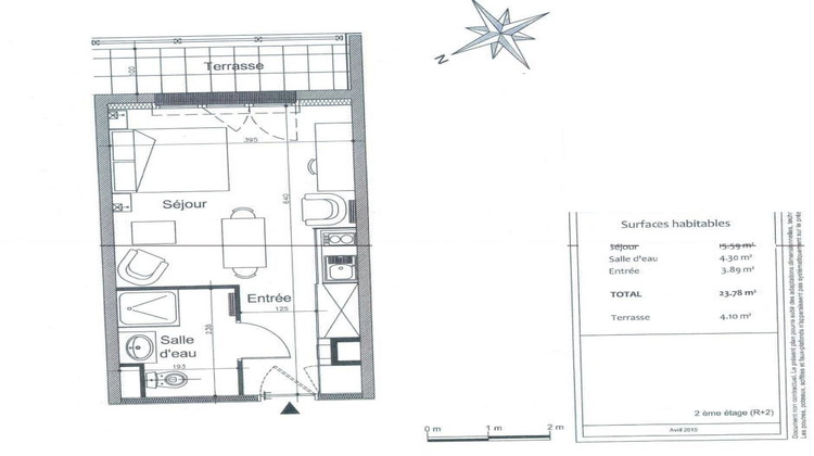
Appartement T1 au deuxième étage d'environ 23,78 m² situé dans une résidence sur la commune de VILLEJUST.
Le logement dispose d'un séjour avec cuisine équipée ouverte (réfrigérateur, plaque électrique, hotte, micro-ondes), une salle d'eau avec WC, un parking ainsi que la jouissance privative et exclusive d'une terrasse.
Loyer entièrement garanti et sécurisé avec un bail commercial, aucune contrainte de gestion, faibles charges.
C'est le produit idéal pour se constituer facilement un patrimoine immobilier.
Loyer annuel HT : 4 832 / an soit 402 / mois
Rentabilité : 7,86% brute
Charges : 129 / mois
Taxe foncière : 309 / an
Gestionnaire : CAP WEST GROUPE avec date de fin de bail le 27/12/2034
Indexation selon l'indice ILC
DPE : C
Nombre de lots : 73
Les avantages
Les loyers sont réglés que le logement soit occupé ou non (sans risque de vacances locatives ou d'impayés).
Vous bénéficiez également d'avantages fiscaux liés au « LMNP amortissable », donnant une exonération d'impôt sur les revenus locatifs.
Aucun frais de gestion courante (le gestionnaire vous règle directement le loyer sans intermédiaire ni frais de gestion locative).
Emplacement premium bien au-dessous du prix du marché.
La résidence
La résidence CAP WEST à VILLEJUST est une résidence moderne, sécurisée et bien équipée. Idéalement située au coeur du pôle d'activité, elle se trouve à proximité des universités et des grandes écoles de la région.
Honoraires à la charge du vendeur. Dans une copropriété de 73 lots. Aucune procédure n'est en cours. Classe énergie C, Classe climat C Montant estimé des dépenses annuelles d'énergie pour un usage standard : entre 289.00 et 404.00 sur les années 2021, 2022 et 2023 (abonnements compris). Les informations sur les risques auxquels ce bien est exposé sont disponibles sur le site Géorisques : georisques.gouv.fr.
- Type de bien : Appartement
- DPE : C - 91 à 150 kWh/².an
- GES : C - 11 à 20 kg eq CO2/².an
- Surface : 23 m²
- Localisation : France - ile-de-france - Essonne
- Ville : Villejust
- Code postal : 91140
- Annonce mise à jour le 06/03/2026

