Vente Appartement 74100, Ville-la-Grand france 269 000 €
Descriptif du bien
Iad France - Sarah Rozière (06 99 86 19 42) vous propose : Appartement T2 avec terrasse à Ville-la-Grand.
BIEN LIRE L'ANNONCE !
APPARTEMENT DISPONIBLE 2026 !
Au cOEur de la résidence L'EDEN, située rue de l'Espérance à Ville-la-Grand, découvrez une adresse élégante à la frontière suisse, alliant confort moderne, qualité architecturale et qualité de vie.
Un appartement raffiné :
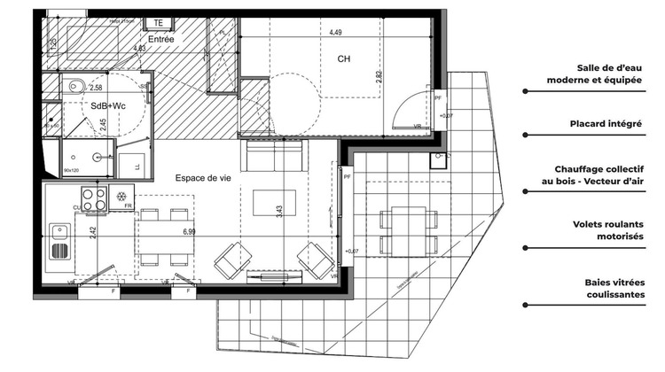
Situé au rez-de-chaussée, cet appartement T2 de 48 m² environ se prolonge par une terrasse de 19 m² environ.
- Séjour avec cuisine ouverte de 24 m² environ.
- Une chambre confortable.
- Une salle d'eau moderne et équipée.
Exposé sud, cet appartement bénéficie d'une exposition parfaite pour profiter d'un salon baigné de lumière tout au long de la journée.
La performance énergétique est au rendez-vous grâce aux dernières normes, garantissant un confort durable et des charges maîtrisées. Le chauffage est collectif au bois, diffusé par vecteur d'air, sans radiateurs apparents.
Résidence et localisation :
- Résidence sécurisée avec contrôle d'accès et équipée d'un ascenseur.
- Locaux vélos sécurisés et équipés.
- Jardin signature.
- Centre-bourg à 400 mètres avec commerces, restaurants et équipements sportifs.
- Établissements scolaires à proximité.
- Gare SNCF d'Annemasse et Léman Express accessibles en quelques minutes (Genève centre en 25 min)
Pas de travaux à prévoir et vous disposez d'une liberté de personnalisation pour créer un intérieur à votre image.
Augmentez votre capital en réduisant les frais de notaire et profitez d'un cadre de vie moderne, performant et clé en main.
Besoin de plus d'informations ou d'un accompagnement personnalisé ? N'hésitez pas à me contacter.
Honoraires d'agence à la charge du vendeur. Bien non soumis au DPE. Les informations sur les risques auxquels ce bien est exposé sont disponibles sur le site Géorisques : www.georisques.gouv.fr. La présente annonce immobilière a été rédigée sous la responsabilité éditoriale de Mlle Sarah Rozière EI (ID 83696), mandataire indépendant en immobilier (sans détention de fonds), agent commercial de la SAS I@D France immatriculé au RSAC de Clermont-Ferrand sous le numéro 978616993, titulaire de la carte de démarchage immobilier pour le compte de la société I@D France SAS.
Retrouvez tous nos biens sur notre site internet. www.iadfrance.fr.Informations LOI ALUR : Honoraires charge vendeur. (gedeon_6727_31951178)
- Type de bien : Appartement
- Surface : 48 m²
- Localisation : France - Auvergne-Rhône-Alpes - Savoie (Haute)
- Ville : Ville-la-Grand
- Code postal : 74100
- Annonce créée le 23/04/2026




