Vente Appartement 42390, Villars france 130 000 €
Descriptif du bien
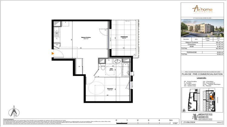
En plein centre de Villars, découvrez ce bel appartement T2 de 40 m², idéalement situé à proximité immédiate des commerces, des transports et de toutes les commodités. Il se compose d'une pièce de vie de 26 m² avec cuisine ouverte, d'une chambre confortable, d'une salle de bains entièrement équipée et d'une belle terrasse de 10 m².
Ce logement aux belles prestations bénéficie d'une isolation thermique performante conforme à la RE2020, garantissant confort et économies d'énergie au quotidien.
Proposé au prix de 130 000 ¤, il est éligible au Prêt à Taux Zéro.
Une place de parking peut également être ajoutée pour 5 000 ¤.
Que vous soyez primo-accédant ou investisseur, cette opportunité mérite toute votre attention. Possibilité de devenir propriétaire à partir de 496 ¤ / mois * .
Le bien offre également un potentiel locatif estimé à 600 ¤ / mois.
Contactez-nous pour plus d'informations ou pour planifier un rendez-vous.
*Sous réserve d'éligibilité au PTZ et d'un financement sur 25 ans. Simulation non contractuelle. Conditions disponibles en agence.
Informations LOI ALUR :
Soumis au régime de copropriété.
Honoraires charge vendeur. (gedeon_28164_31634300)
- Type de bien : Appartement
- Surface : 42 m²
- Localisation : France - Auvergne-Rhône-Alpes - Loire
- Ville : Villars
- Code postal : 42390
- Annonce créée le 24/07/2025


