Mon compte
Accueil > Vente > Auvergne-Rhône-Alpes > isere > Vente Appartement Vienne
Retour

Vente Appartement Vienne, 124 m²

Vente Appartement 38200, Vienne france 139 000 €

Suivre ce bien

Descriptif du bien

Iad France - Cléa Marmonnier vous propose : * Fort potentiel * Grand appartement familial 124 m² *

À deux pas du centre-ville de Vienne dans un immeuble ancien, découvrez ce spacieux appartement de 124 m², situé au 2e étage d'une petite copropriété.

Cet appartement se distingue par son potentiel exceptionnel pour un projet familial et offre de multiples possibilités.

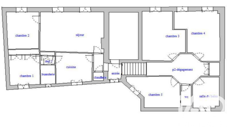
L'appartement est actuellement composé de son côté droit par une entrée, un séjour lumineux, une cuisine séparée, une pièce d'eau et deux chambres.

Du coté gauche, un vaste espace pouvant devenir une pièce de vie, 3 chambres, une salle de bain et un sanitaire indépendant.

Au total, l'appartement dispose de 5 chambres, avec de nombreuses possibilité d'aménagement selon vos besoins.

Côté technique :
Menuiseries PVC double vitrage bois - Volets roulants manuel - Chaudière gaz récente

De plus, le logement dispose de 2 caves privatives.

Aménagement modulable selon vos projets.

* A VENIR DÉCOUVRIR SANS TARDER *

La presente annonce immobiliere vise 4 lots situés dans une copropriété de 23 lots au total et ne faisant l'objet d'aucune procédure en cours citée à l'article L. 721-1 du code de la construction et de l'habitation. Montant moyen mensuel de charges déclaré par le vendeur : 100¤ par mois (soit 1200 ¤ annuel). Honoraires d'agence à la charge du vendeur.
Information d'affichage énergétique sur ce bien : classe ENERGIE D indice 185 et classe CLIMAT D indice 40. Les informations sur les risques auxquels ce bien est exposé, y compris l'obligation légale de débroussaillement, sont disponibles sur le site Géorisques : http://www.georisques.gouv.fr.
La présente annonce immobilière a été rédigée sous la responsabilité éditoriale de Mme Cléa Marmonnier mandataire indépendant en immobilier (sans détention de fonds), agent commercial de la SAS I@D France immatriculé au RSAC de Saint Etienne sous le numéro 984629832, titulaire de la carte de démarchage immobilier pour le compte de la société I@D France SAS.Informations LOI ALUR : Soumis au régime de copropriété. Nombre de lots : 23. Quote part annuelle(moyenne) : 1200 euros. Honoraires charge vendeur. (gedeon_6727_32807045)

  • Type de bien : Appartement
  • DPE : D - 151 à 230 kWh/².an
  • GES : D - 21 à 35 kg eq CO2/².an
  • Surface : 124 m²
  • Localisation : France - Auvergne-Rhône-Alpes - Isère
  • Ville : Vienne
  • Code postal : 38200
  • Annonce créée le 16/04/2026

Biens similaires

Chargement en cours...

Commentaires ou Avis

Poster un commentaire ou un avis sur ce bien. Ce commentaire sera visible sur le sur le site, n’y inscrivez pas vos données personnelles