Vente Appartement 35132, VEZIN-LE-COQUET france 231 000 €
Descriptif du bien
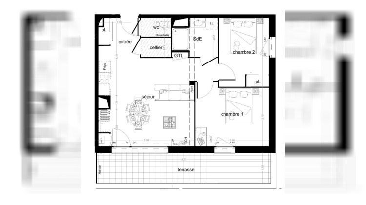
Vezin le Coquet - Appartement 3 pièces 58.74m² Sud - rez-de-jardin - terrasse 15.92m² - stationnements privatifs sécurisé. A seulement 6 km du centre de Rennes, Vezin le Coquet dispose d'un réseau de transports efficace, grâce aux bus du réseau Star et à la piste cyclable REV (Rennes Express Vélo). Idéalement situé au coeur d'un cadre verdoyant, dans une résidence contemporaine au calme, à proximité immédiate des commerces, des écoles et des commodités, appartement 3 pièces situé en rez-de-jardin, comprenant : une entrée avec placard, un séjour salon avec cuisine ouverte donnant accès à une terrasse de 15.92m², deux chambres, une salle d'eau, wc indépendant, wc indépendant, cellier. Stationnement privatif en sous-sol sécurisé ainsi qu'un stationnement extérieur privatif. Promoteur - frais de notaire réduits - Normes RT2020 et DPE A, garantissant de faibles consommations énergétiques. Les informations sur les risques auxquels ce bien est exposé sont disponibles sur le site Géorisques : www.georisques.gouv.fr Copropriété de 49 lots - dont 49 lots habitation. (Pas de procédure en cours). Charges annuelles : 835 euros.
- Type de bien : Appartement
- Surface : 58 m²
- Localisation : France - Bretagne - Ile et Vilaine
- Ville : VEZIN-LE-COQUET
- Code postal : 35132
- Annonce créée le 21/10/2025


