Vente Appartement 74100, Vétraz-Monthoux france 730 000 €
Descriptif du bien
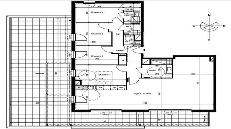
Vetraz Monthoux résidence de standing située sur les hauteurs dans un magnifique parc paysagé,
au 2eme étage appartement T5 neuf de 124,12m². Comprenant prestations haut de gamme, entrée, séjour-cuisine de 57,98m²
avec un accès sur une terrasse de 102,67m² , 4 chambres ,une salle de bains équipée avec meuble vasque suspendu ,une salle d'eau,
2 wc suspendus, dégagement, rangement, deux places de parkings, un local vélo, Hall d'entrée par vidéophone,
répond aux derniers normes BBC RT 2012, phoniques, thermiques.
Proximité immédiate des transports en commun, centre ville, centres commerciaux,
frais de notaire réduits.
Proche d'Annemasse, ville lagrand, Ambilly, Gaillard, Mornex, Monnetier,
Cranves sales, Etrembières, Bonne, et a dix minutes de la frontière de Genève.
OFFRE SPÉCIALE
Jusqu'au 14-10-2018 Votre CUISINE INSTALLEE et OFFERTE (1)
Honoraires à la charge du vendeur. Non soumis au DPE Nos honoraires : https://files.netty.immo/file/sellingimmo/honoraires Les informations sur les risques auxquels ce bien est exposé sont disponibles sur le site Géorisques : georisques.gouv.fr
- Type de bien : Appartement
- Surface : 124 m²
- Localisation : France - Auvergne-Rhône-Alpes - Savoie (Haute)
- Ville : Vétraz-Monthoux
- Code postal : 74100
- Annonce créée le 12/12/2023





