Vente Appartement 27200, Vernon france 107 300 €
Descriptif du bien
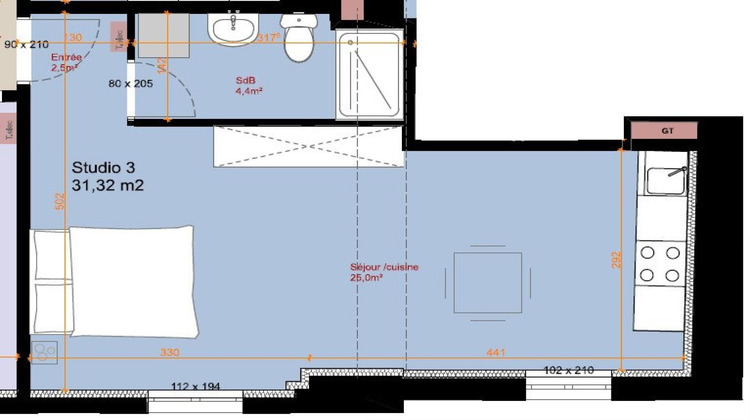
Emplacement privilégié à Vernon (27200) À proximité immédiate du centre-ville et des quais de Seine, dans un environnement recherché, pratique et agréable à vivre. Au sein d'un programme intimiste en cours de rénovation, alliant le charme de l'ancien et le confort moderne, découvrez ce T1 au 1er étage, idéal pour un premier achat, un pied-à-terre ou un investissement locatif.- Superficie : 31,32 m² Carrez- 1 place de parking privative- Belles hauteurs sous plafond- Cachet de l'ancien préservé- Projet personnalisable selon vos goûtsLa rénovation mettra en valeur les éléments d'époque tout en apportant des améliorations techniques essentielles. Travaux prévus dans le programme : - Isolation- Électricité- Plomberie avec attentes pour WC, salle d'eau et cuisineTravaux restant à la charge de l'acquéreur : Revêtements de solsPeintureInstallation des WC, de la salle d'eau et de la cuisineDemande de compteur LinkyRéservations ouvertes dès maintenant. Positionnez-vous rapidement et profitez d'une opportunité rare avant le lancement officiel de la commercialisation. Les visuels présentés sont des exemples d'aménagement. L'appartement sera livré à terminer et sans mobilier, laissant la liberté de créer un intérieur à votre image. Le bien comprend 2 lots, et il est situé dans une copropriété de 7 lots (les charges courantes annuelles moyennes de copropriété sont de 1 ¤ et le syndicat des copropriétaires ne fait pas l'objet d'une procédure citée à l'article L. 721-1 du code de la construction et de l'habitation).Les informations sur les risques auxquels ce bien est exposé sont disponibles sur le site Géorisques : www.georisques.gouv.frPrix de vente : 107 300 ¤Honoraires charge vendeurContactez votre conseiller SAFTI : Lucien HADJADJ, Tél. : 06 48 78 81 61, E-mail : lucien.hadjadj@safti.fr - EI - Agent commercial immatriculé au RSAC de EVREUX sous le numéro 399 164 417.Informations LOI ALUR : Soumis au régime de copropriété. Nombre de lots : 7. Quote part annuelle(moyenne) : 1 euros. Honoraires charge vendeur. (gedeon_26118_32848695)





