Vente Appartement 69200, VENISSIEUX france 255 000 €
1 / 8
Descriptif du bien
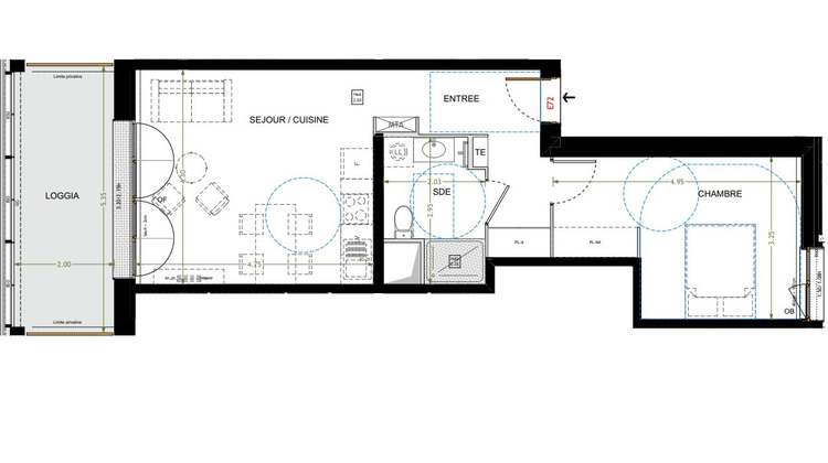
A Vénissieux, Située dans la ZAC Grand Parilly, au coeur du dynamique quartier de Parilly, et à deux pas de toutes commodités, je vous propose à la vente ce très bel appartement de 46,70m² avec sa Terrasse aux dernières normes comprenant : Une entrée, un séjour avec cuisine ouverte donnant sur la grande Terrasse de 10m² , une chambre, une salle d'eau avec WC. Isolation phonique et thermique renforcés, faibles charges. Bâtiment basse consommation Merci de contacter votre conseiller Grégory pour plus d'informations Visuel non contractuel. Copropriété de 177 lots. Charges annuelles : 800 euros.
- Type de bien : Appartement
- DPE : B - 51 à 90 kWh/².an
- GES : B - 6 à 10 kg eq CO2/².an
- Surface : 47 m²
- Localisation : France - Auvergne-Rhône-Alpes - Rhône
- Ville : VENISSIEUX
- Code postal : 69200
- Annonce créée le 10/03/2026







