Vente Appartement 06140, VENCE france 215 000 €
Descriptif du bien
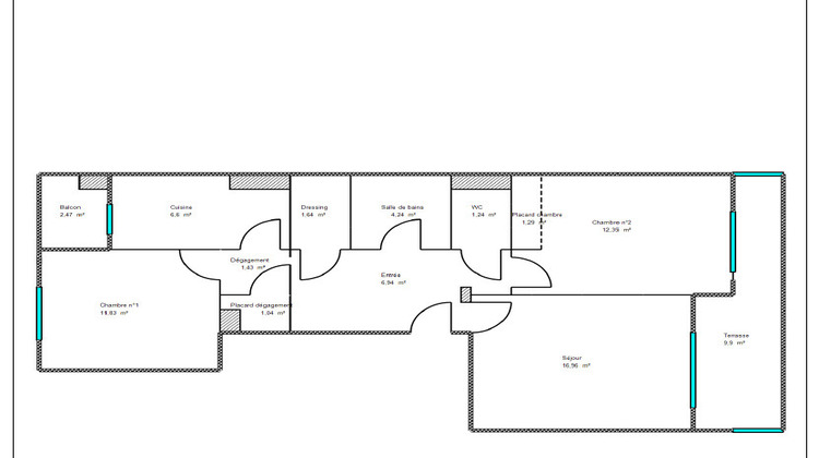
Opportunité investisseur. Situé au 2ème étage d'un immeuble bien entretenu avec ascenseur, appartement lumineux de type 3 pièces offre une vue mer dégagée. D'une surface de 65.56m², il se compose de : une entrée, une cuisine indépendante semi équipée donnant sur loggia, un séjour lumineux donnant sur une terrasse de 9.90m², deux chambres dont une donnant sur la terrasse, une salle de bains, un WC indépendant, dressing et placard. En complément une cave vient agrémenter ce bien ainsi qu'une place de stationnement privative extérieure. Le bien est actuellement loué, pour un loyer de 900.23 euros ( 813.23 euros/mois + 87 euros de charges), depuis le 07/11/1998. Copropriété de 50 lots (Pas de procédure en cours). Charges annuelles : 1670.64 euros.
- Type de bien : Appartement
- DPE : D - 151 à 230 kWh/².an
- GES : D - 21 à 35 kg eq CO2/².an
- Surface : 65 m²
- Localisation : France - provence-alpes-cote-d-azur - Alpes Maritimes
- Ville : VENCE
- Code postal : 06140
- Annonce créée le 24/02/2026









