Vente Appartement 69120, VAULX-EN-VELIN france 228 000 €
1 / 8
Descriptif du bien
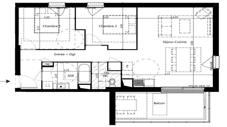
Dernière opportunité ! A Vaulx en Velin, a proximité immédiate de la fture ligne de tram 9, je vous propose à la vente ce ravissant T3 saura vous séduire par sa pièce à vivre de 28m² avec sa cuisine américaine donnant sur une belle terrasse de 12m². Il est aussi composé d'une salle de bain, de deux chambres ainsi qu'un WC indépendant. Un parking en sous-sol compris. Prix de vente soumis à des plafonds de revenus, voir conditions en agence Bâtiment basse consommation Contactez Grégory pour plus d'informations Visuel non contractuel Copropriété de 72 lots - dont 72 lots habitation. (Pas de procédure en cours). Charges annuelles : 1000 euros.
- Type de bien : Appartement
- DPE : A -< 51 kWh/².an
- GES : A -< 6 kg eq CO2/².an
- Surface : 64 m²
- Localisation : France - Auvergne-Rhône-Alpes - Rhône
- Ville : VAULX-EN-VELIN
- Code postal : 69120
- Annonce créée le 03/03/2026







