Vente Appartement 38114, Vaujany france 396 261 €
Descriptif du bien
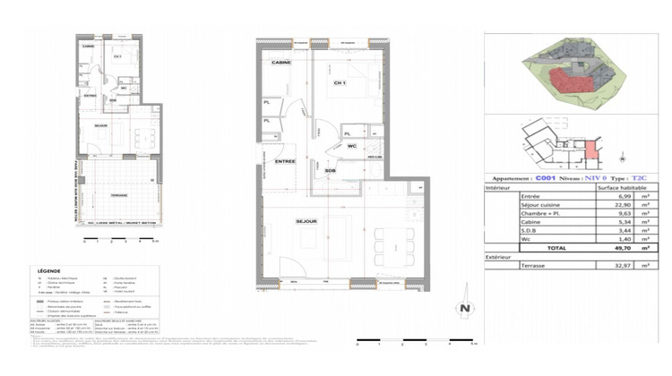
Iad France - Hugo Djaou (06 52 79 86 47) vous propose : Au sein de la résidence AGATE, ensemble immobilier de standing situé dans le cOEur du village de VAUJANY, cet appartement T2 avec cabine répond aux attentes actuelles en station, tant pour un usage personnel que pour un investissement patrimonial.
Il se compose d'une pièce de vie de 23 m² environ avec cuisine ouverte, donnant sur une terrasse de 33 m² environ, plein sud, d'une chambre indépendante, d'une cabine distincte, d'une salle de bain et WC séparé.
La résidence offre des prestations de standing, notamment des espaces communs dédiés au confort (local à skis, espace bien-être, ascenseur), tout en conservant un accès piéton rapide aux remontées mécaniques, aux commerces et aux services du village.
Une typologie polyvalente, cohérente avec les usages de la montagne aujourd'hui
Honoraires d'agence à la charge du vendeur. Bien non soumis au DPE. Les informations sur les risques auxquels ce bien est exposé sont disponibles sur le site Géorisques : www.georisques.gouv.fr. La présente annonce immobilière a été rédigée sous la responsabilité éditoriale de M. Hugo Djaou EI (ID 91340), mandataire indépendant en immobilier (sans détention de fonds), agent commercial de la SAS I@D France immatriculé au RSAC de GRENOBLE sous le numéro 992957878, titulaire de la carte de démarchage immobilier pour le compte de la société I@D France SAS.
Retrouvez tous nos biens sur notre site internet. www.iadfrance.fr.Informations LOI ALUR : Honoraires charge vendeur. (gedeon_6727_32546156)
- Type de bien : Appartement
- Surface : 50 m²
- Localisation : France - Auvergne-Rhône-Alpes - Isère
- Ville : Vaujany
- Code postal : 38114
- Annonce créée le 16/04/2026





