Vente Appartement 07600, VALS LES BAINS france 60 000 €
Descriptif du bien
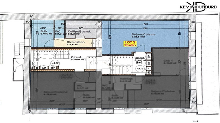
Kévin DUFOURD MarketPlace Immobilier vous propose un appartement A RENOVER entièrement d'environ 50m² habitable au centre-ville de VALS LES BAINS. L'appartement au 1er étage, est composé d'un séjour de 28m², un cellier, une salle d'eau et un WC. Il est proche de toutes les commodités que peut offrir la commune de VALS LES BAINS, idéal pour premier achat ou pour investisseur. Je reste à votre disposition pour visiter et découvrir ce bien. Le bien comprend 1 lot et il est situé dans une copropriété de 19 lots (les charges courantes annuelles moyennes de copropriété sont de 500 euros et le syndicat des copropriétaires ne fait pas l'objet d'une procédure citée à l'article L. 721-1 du code de la construction et de l'habitation).Contactez Kévin DUFOURD de MPI pour organiser une visite : TEL: 07.78.55.21.92 - EMAIL: kevin.d@mpi-immo.com - RSAC AUBENAS N° 791 454 366 Agent commercial indépendant du réseau national Marketplace Immobilier N° RSAC : 791454366
- Type de bien : Appartement
- Surface : 49 m²
- Localisation : France - Auvergne-Rhône-Alpes - Ardèche
- Ville : VALS LES BAINS
- Code postal : 07600
- Annonce créée le 04/10/2025



