Vente Appartement 06220, Vallauris france 355 000 €
1 / 3
Descriptif du bien
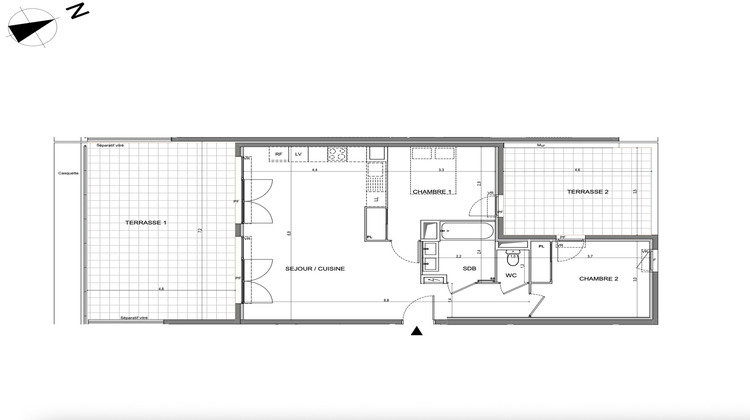
Sur les hauteurs de Vallauris, dans résidence neuve en cours de construction, à l'architecture élégante et située dans un parc paysager, appartement 3 pièces bénéficiant d'une double exposition.
Son agencement offre une pièce de vie avec cuisine de plus de 37m2 ouvrant sur large terrasse de 32m2, 2 chambres avec placard donnant sur une seconde terrasse de 16m2, salle de bains et WC.
Un parking double complète cette offre !
Les informations sur les risques auxquels ce bien est exposé sont disponibles sur le site Géorisques : www.georisques.gouv.fr
- Type de bien : Appartement
- Surface : 65 m²
- Localisation : France - provence-alpes-cote-d-azur - Alpes Maritimes
- Ville : Vallauris
- Code postal : 06220
- Annonce créée le 27/08/2025


