Vente Appartement 06560, VALBONNE france 277 000 €
Descriptif du bien
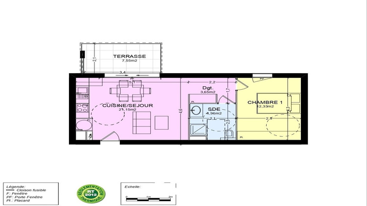
A Valbonne, au coeur de la Métropole Sophia-Antipolis, à 40 minutes de Nice, 24 kilomètres de l'aéroport et 12 kilomètres de Cannes. L'équipe Déclic Immo 06 vous propose cet appartement neuf - livraison au 1er semestre 2027. Cet appartement au 1er étage d'un immeuble de 2 étages offre : - Un espace de vie lumineux grâce à de larges baies vitrées, - Une cuisine sera a créer au gré des goûts et envies de chacun, - Une chambre équipée d'un placard, - Une salle d'eau avec sèche-serviettes et meuble vasque design, - Un balcon de 7,50 m2 environ Les atouts : - A quelques minutes à pied du coeur de village, - Climatisation réversible dans toutes les pièces, - Prestations de qualité, - Isolation performante, - Aménagements extérieurs verdoyants Réf 1158. DECLIC IMMO 06 Les informations sur les risques auxquels ce bien est exposé sont disponibles sur le site Géorisques : www.georisques.gouv.fr. Annonce proposée et rédigée sous la responsabilité éditoriale de BRANDL Virginia - 06 67 31 80 73 Agent commercial RSAC N° 924 797 046 Ville du greffe : GRASSE Bien soumis au statut juridique de la Copropriété. Nb de lots : 57. Charges annuelles de copropriété (Montant moyen annuel quote-part du budget prévisionnel vendeur) : en cours Pas de procédure en cours. Prix TTC et Honoraires à charge vendeur TTC Surface CARREZ : 42,09 m2
- Type de bien : Appartement
- Surface : 42 m²
- Localisation : France - provence-alpes-cote-d-azur - Alpes Maritimes
- Ville : VALBONNE
- Code postal : 06560
- Annonce mise à jour le 08/12/2025


