Vente Appartement 14360, Trouville-sur-Mer france 333 000 €
Descriptif du bien
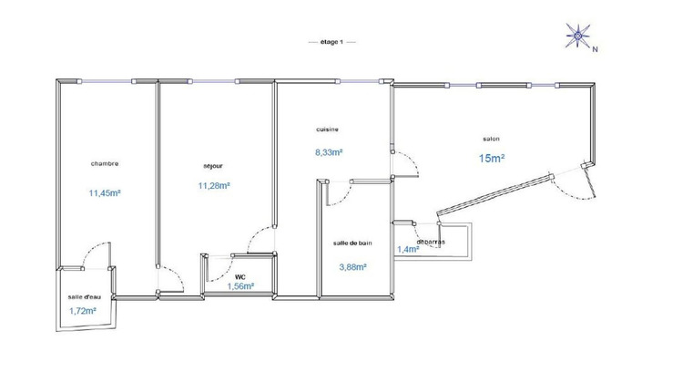
Si vous cherchez la discrétion, le calme tout en étant au coeur de centre-ville, l'authenticité des bâtisses d'autrefois qui abritaient les familles de Marins et des commerçants, alors je vous invite à découvrir votre prochain nid Trouvillais ! D'une surface de 91 m² au sol et de 69 m² CARREZ. Il est composé : en premier niveau; 1 salon / salle à manger, 1 cuisine, 1 salle de bain avec WC, 1 buanderie, 1 chambre avec salle d'eau, 1 bureau avec placard pouvant servir de chambre d'appoint. À l'étage, 1 grande chambre sous-toiture avec 1 espace chambre ou bureau pouvant être séparé par la pose d'une porte. Velux et chien assis permettent une agréable luminosité. Quelques travaux de rafraichissement à prévoir (décoration, salles d'eau). Il est orienté Sud / S/O et offre une vue dégagée sur la Touques de quelques fenêtres et n'est pas sujet au vis à vis. Aucun bruit de voisinage. Travaux d'isolation réalisés récemment (toiture neuve, isolation sous-toiture fenêtres récentes en double vitrage). L'appartement permettra un réagencement de certaines pièces. Plein centre ville et à 10' à pied de la gare de Deauville, son emplacement est stratégique. Le bien comprend 2 lots, et il est situé dans une copropriété de 13 lots (les charges courantes annuelles moyennes de copropriété sont de 840 ¤ et le syndicat des copropriétaires ne fait pas l'objet d'une procédure citée à l'article L. 721-1 du code de la construction et de l'habitation).Les informations sur les risques auxquels ce bien est exposé sont disponibles sur le site Géorisques : www.georisques.gouv.frPrix de vente : 333 000 ¤Honoraires charge vendeurContactez votre conseiller SAFTI : Richard RICOUL, Tél. : 06 56 88 48 42, E-mail : richard.ricoul@safti.fr - EI - Agent commercial immatriculé au RSAC de LISIEUX sous le numéro 387 573 496.Informations LOI ALUR : Soumis au régime de copropriété. Nombre de lots : 13. Quote part annuelle(moyenne) : 840 euros. Honoraires charge vendeur. (gedeon_26118_32697532)





