Vente Appartement 01600, Trévoux france 255 000 €
1 / 2
Descriptif du bien
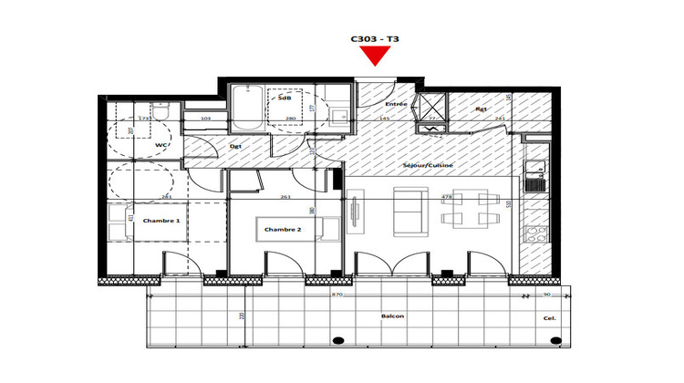
Dans une résidence neuve, T3 de 65.99 m2 composé d'une cuisine ouverte sur un séjour, de deux chambres, salle de bain séparée des WC et d'un balcon de 20.66 m2.
Vendu avec un stationnement extérieur compris dans le prix de vente.
Retrouvez notre visite virtuelle du programme en cliquant sur ce lien :
Commercialisé en location-accession sous conditions de ressources.
- Type de bien : Appartement
- Surface : 65 m²
- Localisation : France - Auvergne-Rhône-Alpes - Ain
- Ville : Trévoux
- Code postal : 01600
- Disponible le 31/12/2028
- Annonce créée le 12/11/2025

