Vente Appartement 78190, Trappes france 237 300 €
Descriptif du bien
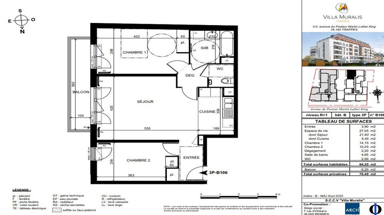
A vendre, Appartement T3 dans résidence de 2024.
Situé au coeur d'un quartier dynamique et bien desservi avec les commerces au pied de la résidence VILLA MURALIS (avenue Martin Luther King), cet appartement offre une surface habitable de 64,20 m². Il comprend une entrée avec placard aménagé, un grand séjour d'une superficie de 28 m², 2 grandes chambres dont une de 14.15 m² avec chacune leur placard aménagé, une salle de bains, un espace WC séparé.
Situé au 1er étage d'une résidence avec ascenseur, cet appartement bénéficie d'un balcon de 6.20 m², parfait pour profiter les beaux jours en toute tranquillité.
Ce logement propose également deux places de stationnement en sous-sol.
Avec une TVA réduite, ne manquez pas cette opportunité unique de faire de cet appartement votre nouveau chez-vous à un prix très abordable.
À proximité, vous trouverez plusieurs commodités pratiques : un bus à moins de 5 min à pied, une école élémentaire à 5 min à pied, des commerces au pieds de l'immeuble...
Prix : 228 000 TTC (frais de notaire réduits)
Dans une copropriété de 51 lots. Aucune procédure n'est en cours. Classe énergie C, Classe climat C Montant estimé des dépenses annuelles d'énergie pour un usage standard : entre 340.00 et 620.00 sur les années 2021, 2022 et 2023 (abonnements compris). Les informations sur les risques auxquels ce bien est exposé sont disponibles sur le site Géorisques : georisques.gouv.fr.
- Type de bien : Appartement
- DPE : C - 91 à 150 kWh/².an
- GES : C - 11 à 20 kg eq CO2/².an
- Surface : 64 m²
- Localisation : France - ile-de-france - Yvelines
- Ville : Trappes
- Code postal : 78190
- Annonce créée le 30/05/2025





