Vente Appartement 83000, Toulon france 99 000 €
Descriptif du bien
Iad France - Guillaume Lefevre vous propose : Appartement avec fort potentiel à rénover - Emplacement Idéal à Toulon
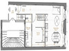
Vous recherchez un pied-à-terre à rénover selon vos goûts au cOEur de Toulon ? Ne cherchez plus, cet appartement de 32 m² situé au 4ème étage d'une résidence de 5 niveaux, à quelques pas des Halles Gourmandes et de la Place Puget, est l'opportunité qu'il vous faut.
Cet appartement à rénover est à agencer à votre goût et en fonction de vos envies.
Une architecte a travaillé sur l'appartement et recommande de retravailler les espaces en créant une chambre d'environ 9 m² et un salon séjour de 18 m².
Bien que nécessitant des travaux, cet appartement offre de belles perspectives d'aménagement pour créer un espace de vie moderne et fonctionnel à votre image.
L'emplacement de cet appartement est un véritable atout, à proximité immédiate des commerces, marchés et lieux de vie animés de Toulon. Vous pourrez profiter des Halles Gourmandes pour vos achats frais à seulement 50m de chez vous, tandis que la charmante Place Puget se trouve à 80m, offrant un cadre idéal pour flâner et profiter des terrasses ensoleillées.
Si vous avez l'OEil pour révéler le potentiel caché de ce bien et en faire un véritable cocon urbain, ne manquez pas l'occasion de visiter cet appartement à rénover à Toulon. Une visite s'impose pour apprécier pleinement son potentiel et son emplacement privilégié.
La presente annonce immobiliere vise 2 lots situés dans une copropriété de 20 lots au total et ne faisant l'objet d'aucune procédure en cours citée à l'article L. 721-1 du code de la construction et de l'habitation. Montant moyen mensuel de charges déclaré par le vendeur : 45¤ par mois (soit 540 ¤ annuel). Honoraires d'agence à la charge du vendeur.
Information d'affichage énergétique sur ce bien : classe ENERGIE D indice 187 et classe CLIMAT A indice 5. Les informations sur les risques auxquels ce bien est exposé, y compris l'obligation légale de débroussaillement, sont disponibles sur le site Géorisques : http://www.georisques.gouv.fr.
La présente annonce immobilière a été rédigée sous la responsabilité éditoriale de M Guillaume Lefevre mandataire indépendant en immobilier (sans détention de fonds), agent commercial de la SAS I@D France immatriculé au RSAC de Toulon sous le numéro 517617262, titulaire de la carte de démarchage immobilier pour le compte de la société I@D France SAS.
Informations LOI ALUR :
Soumis au régime de copropriété.
Nombre de lots : 20.
Quote part annuelle(moyenne) : 540 euros.
Honoraires charge vendeur. (gedeon_6727_32397096)
- Type de bien : Appartement
- DPE : D - 151 à 230 kWh/².an
- GES : A -< 6 kg eq CO2/².an
- Surface : 32 m²
- Localisation : France - provence-alpes-cote-d-azur - Var
- Ville : Toulon
- Code postal : 83000
- Annonce créée le 08/01/2026





