Vente Appartement 74300, THYEZ france 209 000 €
1 / 9
Descriptif du bien
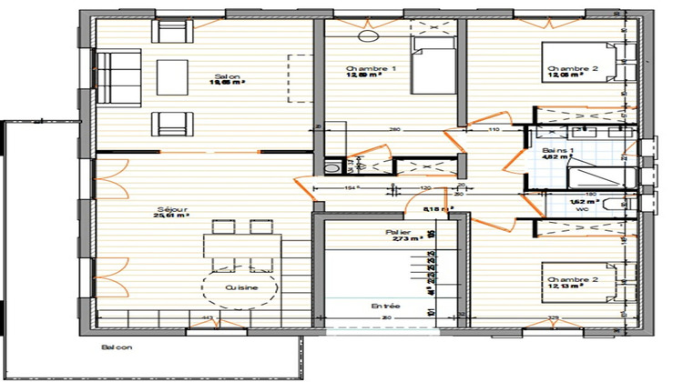
A VENDRE THYEZ APPARTEMENT T5 AVEC GARAGE Prêt à partir d'une page blanche ? Ici, rien n'est figé. Cet appartement demande une rénovation complète, et c'est justement sa force : vous ne rénovez pas, vous créez. Situé dans un environnement paisible, à proximité immédiate des lacs de Thyez, dans une maison composée de seulement trois appartements (disponibles à la vente), il s'adresse aux esprits créatifs et aux amateurs de projets ambitieux. Vendu avec un garage et une cave. Relevé des cotes par Altitude Architecture. Copropriété de 3 lots (Pas de procédure en cours).
- Type de bien : Appartement
- DPE : F - 331 à 450 kWh/².an
- GES : F - 56 à 80 kg eq CO2/².an
- Surface : 97 m²
- Localisation : France - Auvergne-Rhône-Alpes - Savoie (Haute)
- Ville : THYEZ
- Code postal : 74300
- Annonce créée le 24/02/2026








