Vente Appartement 74200, Thonon-les-Bains france 259 000 €
Descriptif du bien
Iad France - Marièle Trimaille vous propose : GRAND T2 avec JARDIN - QUARTIER OUEST - COPROPRIÉTÉ PRISÉE - POSSIBILITÉ 2e CHAMBRE
Laissez-vous séduire par le quartier du Pillon, avec sa qualité de vie, son parc et ses commerces. À seulement quelques minutes du lac Léman, des plages, de la gare et de l'embarcadère reliant la Suisse, cette adresse conjugue parfaitement accessibilité et douceur de vivre.
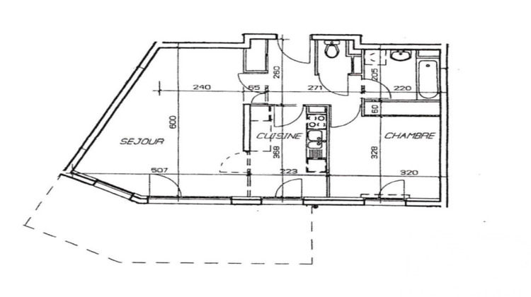
Ce charmant rez-de-jardin se décline ainsi : une entrée avec placard, une lumineuse pièce de vie avec cuisine semi-ouverte donnant directement sur la terrasse couverte et le jardin (115 m² environ), au calme, exposé Sud-Est à Sud-Ouest. Une chambre avec placard (possibilité d'un second espace nuit ou bureau dans le séjour), une salle de bains, un WC séparé.
Une cave complète ce bien. Pour vous garer, des places extérieures sont disponibles dans la copropriété ainsi qu'un local à vélos. Les charges de copropriété comprennent également le chauffage et l'eau (avec compteurs individuels).
Ne laissez pas passer cet appartement idéalement situé, pour votre habitation principale ou un pied-à-terre de qualité à Thonon-les-Bains, c'est une valeur sûre !
La presente annonce immobiliere vise 2 lots situés dans une copropriété de 118 lots au total et ne faisant l'objet d'aucune procédure en cours citée à l'article L. 721-1 du code de la construction et de l'habitation. Montant moyen mensuel de charges déclaré par le vendeur : 127.33¤ par mois (soit 1528 ¤ annuel). Honoraires d'agence à la charge du vendeur.
Information d'affichage énergétique sur ce bien : classe ENERGIE D indice 184 et classe CLIMAT D indice 35. Les informations sur les risques auxquels ce bien est exposé, y compris l'obligation légale de débroussaillement, sont disponibles sur le site Géorisques : http://www.georisques.gouv.fr.
La présente annonce immobilière a été rédigée sous la responsabilité éditoriale de Mme Marièle Trimaille mandataire indépendant en immobilier (sans détention de fonds), agent commercial de la SAS I@D France immatriculé au RSAC de Thonon-les-Bains sous le numéro 904729571, titulaire de la carte de démarchage immobilier pour le compte de la société I@D France SAS.Informations LOI ALUR : Soumis au régime de copropriété. Nombre de lots : 118. Quote part annuelle(moyenne) : 1528 euros. Honoraires charge vendeur. (gedeon_6727_33043393)
- Type de bien : Appartement
- DPE : D - 151 à 230 kWh/².an
- GES : D - 21 à 35 kg eq CO2/².an
- Surface : 55 m²
- Localisation : France - Auvergne-Rhône-Alpes - Savoie (Haute)
- Ville : Thonon-les-Bains
- Code postal : 74200
- Annonce créée le 16/04/2026





