Vente Appartement 74200, Thonon-les-Bains france 245 000 €
Descriptif du bien
Au coeur de Thonon-les -bains, ville dynamique de haute Savoie idéalement située entre lac et montagne, cette nouvelle résidence de 52 logements offre un cadre de vie unique, alliant nature, confort et accessibilité.
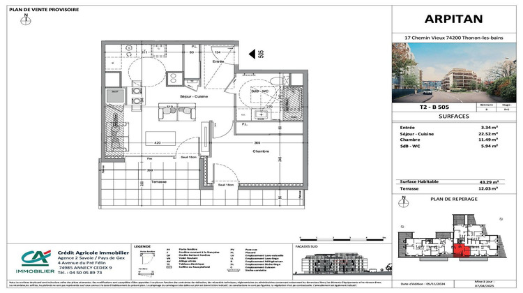
Appartement Type 2 de presque 40m² avec 12m² de balcon composé d'une entrée, un séjour salon avec cuisine américaine meublée et semi-équipée, une chambre, une salle de bains avec toilette. Situé au 5ème étage avec ascenseur, cet appartement dispose également d'un garage en sous-sol et d'une cave ou local perso privatif.
A seulement 12 minutes à pied du centre ville, elle s'intègre harmonieusement dans un environnement verdoyant entourée de grands arbres pour une atmosphère paisible.
Proche des rives du Léman, elle permet de profiter pleinement d'un quotidien tourné vers la détente et les loisirs.
Sa situation géographique est idéale : à 9km d'Evian, 31km d'Annemasse , 34 Km d'Annecy, et Genève accessible en moins d'une heure grâce au Léman express.
Pensée pour le bien être de ses habitants, la résidence propose des appartements tous conforts, du 2 au 4 pièces à partir de 227.000 TTC, avec balcon ou terrasse, cuisine aménagés avec façade personnalisables, volets roulants et stationnement privatifs.
Le tout dans une résidence sécurisé, construite avec de beaux matériaux et des prestations de qualités.
N'hésitez pas à nous contacter pour toute informations sur cette opération.
Honoraires à la charge du vendeur. Dans une copropriété de 150 lots. Aucune procédure n'est en cours. Non soumis au DPE. Les informations sur les risques auxquels ce bien est exposé sont disponibles sur le site Géorisques : georisques.gouv.fr.
Carte pro. CPI7401 2018 000 035 952
- Type de bien : Appartement
- Surface : 43 m²
- Localisation : France - Auvergne-Rhône-Alpes - Savoie (Haute)
- Ville : Thonon-les-Bains
- Code postal : 74200
- Disponible le 31/12/2026
- Annonce créée le 08/08/2025





