Vente Appartement 74200, THONON-LES-BAINS france 229 000 €
1 / 3
Descriptif du bien
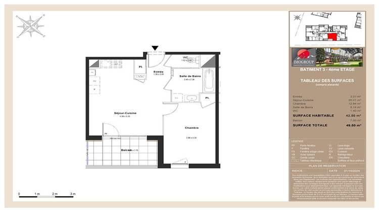
THONON - Dans un quartier recherché, proche du centre ville, proche des écoles, du lac et des transports, découvrez ce superbe appartement de type T2, situé d'une résidence récente avec ascenseur. Offrant une surface habitable de 42 m², il dispose également d'un balcon de 7m², idéalement exposé. Chauffage individuel au gaz. Disponible sans tarder ! Un Stationnement.
- Type de bien : Appartement
- Surface : 42 m²
- Localisation : France - Auvergne-Rhône-Alpes - Savoie (Haute)
- Ville : THONON-LES-BAINS
- Code postal : 74200
- Annonce créée le 01/04/2025


