Vente Appartement 57100, Thionville france 109 000 €
Descriptif du bien
ADRIA IMMOBILIER Frédéric Leclerc (EI) 06 72 97 94 74vous propose une sélection de studio idéalement situés à Thionville, proche de l'hôpital Bel-Air, à proximité immédiate des commerces, écoles et transports en commun.
Ces logements allient confort moderne et performance énergétique grâce à une conception basse consommation, une pompe à chaleur collective, un ascenseur, une place de parking et un local à vélos.
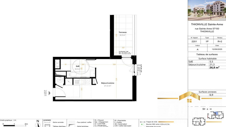
Lot n° 2201 : Situé au 2ème étage, cet appartement de type Studio de 26.80 m² possède un balcon de 6.90m² - Exposition Est (voir plan du lot 2201 ci-joint) et vous fera bénéficier d'un confort de vie optimisé : Appartement basse consommation énergétique, pompe à chaleur collectif, ASCENSEUR, place de parking Local à vélo.
Nous vous proposons également à la vente les deux studios ci-dessous (voir plan des lots) :
- Lot 2301 : situé au 3ème étage, ce studio de 26.80 m² possède un balcon de 6.90m² - Exposition Est (voir plan du lot 2301 ci-joint). Prix : 112 000
- Lot 2403 : situé au 4ème étage, ce studio de 30.60 m² possède un balcon de 12.30m² - Exposition Ouest (voir plan du lot 2403 ci-joint). Prix : 126 000
? Points forts :
Résidence récente et élégante
Appartements lumineux et bien agencés
Espaces extérieurs généreux : balcons ou terrasses selon les lots
Construction répondant aux dernières normes énergétiques
Prestations de qualité : ascenseur, pompe à chaleur, stationnement privatif, local vélos
Situés à Thionville, dans un quartier calme et recherché, ces appartements bénéficient d'un accès rapide au centre-ville, aux axes autoroutiers et à la gare. Un cadre de vie agréable, parfait pour un premier achat, un investissement locatif ou une résidence principale.
? Prix sous condition de revenus
Ces appartements peuvent bénéficier, sous certaines conditions de ressources, d'un prix préférentiel et d'une TVA réduite à 5,5 %, permettant de réduire significativement le coût d'acquisition.Renseignez-vous pour connaître votre éligibilité à ce dispositif avantageux.
Offre exceptionnelle : frais de notaire OFFERTS pour toute réservation !
Pour tout renseignement complémentaire ou pour obtenir les plans détaillés, contactez :Frédéric Leclerc (EI) ADRIA IMMOBILIER au 06 72 97 94 74 ou Jessica Desogus (EI) - ADRIA IMMOBILIER au 06 25 18 68 25Merci de préciser le numéro du lot souhaité lors de votre appel.
Honoraires à la charge du vendeur. Dans une copropriété de 3 lots. Quote-part moyenne du budget prévisionnel 1 /an. Aucune procédure n'est en cours. Non soumis au DPE. Les informations sur les risques auxquels ce bien est exposé sont disponibles sur le site Géorisques : georisques.gouv.fr.
Votre conseiller ADRIA Immobilier : Frederic LECLERC EI (Entreprise Individuelle)
Agent commercial (Entreprise individuelle)
RSAC 818418733.
*Tous les conseillers* ADRIA Immobilier sont des agents commerciaux indépendants de la SAS Adria Immobilier et Finance SA, immatriculée au RSAC (sans détention de fonds) titulaire de la carte de démarchage immobilier pour le compte de la société Adria Immobilier et Finance SAS.




