Vente Appartement 57100, Thionville france 320 000 €
Descriptif du bien
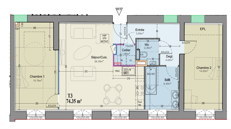
THIONVILLE Superbe T3 de 75 m2 avec parking, en plein centre-ville
Idéalement situé avenue Clemenceau, en plein coeur de Thionville et à seulement quelques minutes à pied de la gare, ce charmant appartement de 75 m2 se trouve au rez-de-chaussée surélevé d'un bâtiment emblématique de la ville.
Agencement soigné et lumineux :
Dès l'entrée, vous serez accueilli par un espace fonctionnel comprenant un cellier et un WC suspendu avec lave-mains séparé. La pièce de vie de 26 m2, baignée de lumière grâce à sa belle hauteur sous plafond, offre un espace chaleureux avec cuisine ouverte et coin salon.
L'espace nuit comprend :
Une grande chambre de 15,75 m2 avec possibilité d'aménagement personnalisé,
Un dégagement avec placard intégré menant à une seconde chambre,
Une salle de douche équipée, habillée de faïence toute hauteur et bénéficiant d'une fenêtre pour une aération naturelle.
Prestations de qualité :
Chauffage au sol individuel
Parquet contrecollé bois
Carrelage grand format
WC suspendu avec lave-mains
Un parking sécurisé vient compléter ce bien rare sur le secteur.
Atouts majeurs :
Emplacement central
À deux pas de la gare, des commerces et des commodités
Résidence de caractère
Une opportunité à ne pas manquer. Contactez-nous dès maintenant pour organiser une visite !


