Vente Appartement 95150, Taverny france 185 000 €
Descriptif du bien
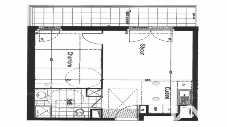
Iad France - Aurelien Belot vous propose : À 5 min à pied de la GARE TAVERNY, et au pied des commerces. Dans une résidence
construite en 2019 sous garantie décennale. Venez découvrir ce beau 2 pièces de 42 m²
environ en rez de jardin bien agencé. Ce bien se compose d'une entrée avec placard,
d'une cuisine équipée et aménagée ouverte sur le séjour, d'une grande chambre et d'une
salle d'eau. LES PLUS : Le séjour et la chambre donne sur la terrasse, PARKING en sous
sol, immeuble sous garantie décennale, TRES FAIBLE CHARGE. Norme PMR
La presente annonce immobiliere vise 2 lots situés dans une copropriété de 60 lots au total et ne faisant l'objet d'aucune procédure en cours citée à l'article L. 721-1 du code de la construction et de l'habitation. Montant moyen mensuel de charges déclaré par le vendeur : 133¤ par mois (soit 1596 ¤ annuel). Honoraires d'agence à la charge du vendeur.
Information d'affichage énergétique sur ce bien : classe ENERGIE B indice 85 et classe CLIMAT B indice 6. Les informations sur les risques auxquels ce bien est exposé, y compris l'obligation légale de débroussaillement, sont disponibles sur le site Géorisques : http://www.georisques.gouv.fr.
La présente annonce immobilière a été rédigée sous la responsabilité éditoriale de M Aurelien Belot mandataire indépendant en immobilier (sans détention de fonds), agent commercial de la SAS I@D France immatriculé au RSAC de BOBIGNY sous le numéro 818208548, titulaire de la carte de démarchage immobilier pour le compte de la société I@D France SAS.
Informations LOI ALUR :
Soumis au régime de copropriété.
Nombre de lots : 60.
Quote part annuelle(moyenne) : 1596 euros.
Honoraires charge vendeur. (gedeon_6727_32593987)
- Type de bien : Appartement
- DPE : B - 51 à 90 kWh/².an
- GES : B - 6 à 10 kg eq CO2/².an
- Surface : 42 m²
- Localisation : France - ile-de-france - Val d'oise
- Ville : Taverny
- Code postal : 95150
- Annonce créée le 12/02/2026





