Vente Appartement 69160, Tassin-la-Demi-Lune france 435 000 €
Descriptif du bien
/// Frais de Notaire OFFERT ///
Disponible immédiatement.
Situé à quelques pas de la place de la Mairie, des commerces et transports en commun de Tassin La Demi-Lune.
Cette résidence à peine terminée répondant aux derniers normes d'isolation thermique et phonique offre de très belles prestations.
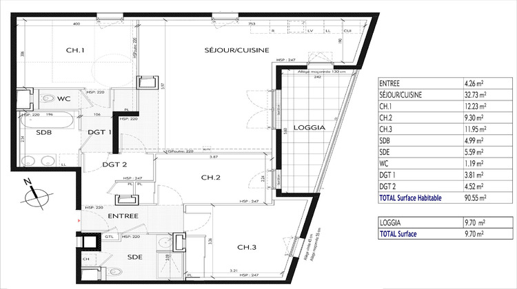
T4 de 91M2 au 3e étage sur 4, sans vis à vis et très bien agencé aux volumes généreux.
Il se compose d'une belle entrée avec placard, d'un séjour confortable, de 3 chambres, d'une salle de bain et d'une salle d'eau avec sa d'eau à l'italienne, de 2 wc indépendant.
(Menuiseries Aluminium a isolation renforcée, volets roulants électriques, grand carrelage dans la pièce de vie, les circulations et les salles de bains, parquet bois contrecollé dans les chambres, wc suspendu, placard équipée, chaudière individuelle gaz pour chauffage et eau chaude, fibre optique... !)
Tout les avantages du NEUF sans en attendre les délais... !!
A visiter très vite.
Contacter votre conseiller Centralys Immobilier : Thierry STEFFAN.
- Type de bien : Appartement
- DPE : C - 91 à 150 kWh/².an
- GES : C - 11 à 20 kg eq CO2/².an
- Surface : 107 m²
- Localisation : France - Auvergne-Rhône-Alpes - Rhône
- Ville : Tassin-la-Demi-Lune
- Code postal : 69160
- Annonce mise à jour le 22/04/2026



