Vente Appartement 33400, Talence france 325 000 €
Descriptif du bien
VIVRE A L'EXTERIEUR - TERRASSE ROOFTOP
Dans une résidence intimiste avec architecture de charme et moderne grâce à sa façade arborée et un rooftop exclusif pour profiter pleinement des beaux jours. Au pied des commerces de proximité, au coeur de l'attractivité tout étant au calme, cet appartement saura vous séduire. Il se situe entre Talence et Bordeaux.
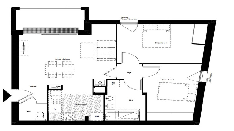
Il se compose d'une entrée avec WC Indépendant donnant directement sur la pièce de vie prolongée d'une loggia de 6m2. Coté nuit, vous trouverez deux chambres de 12 et 13m2 ainsi qu'une salle de bain double vasque avec espace pour le lave linge. Il se compose enfin d'une magnifique et rare terrasse rooftop de 13m2 avec une vue totalement dégagée.
Une place de parking sécurisée complète ce bien.
- Frais de Notaires Réduits
- Aucun travaux à prévoir
- Garanties
- RT 2012
- ...
VIVRE A L'EXTERIEUR - TERRASSE ROOFTOP
Honoraires à la charge du vendeur. Dans une copropriété de 26 lots. Aucune procédure n'est en cours. DPE en cours. Les informations sur les risques auxquels ce bien est exposé sont disponibles sur le site Géorisques : georisques.gouv.fr.
Votre conseiller RH Patrimoine : Maxime HERVE
Agent commercial (Entreprise individuelle)
RSAC 133095555 J
RCP 13309666 J
- Type de bien : Appartement
- Surface : 64 m²
- Localisation : France - Nouvelle-Aquitaine - Gironde
- Ville : Talence
- Code postal : 33400
- Annonce mise à jour le 04/04/2025




