Vente Appartement 92150, SURESNES france 810 000 €
Descriptif du bien
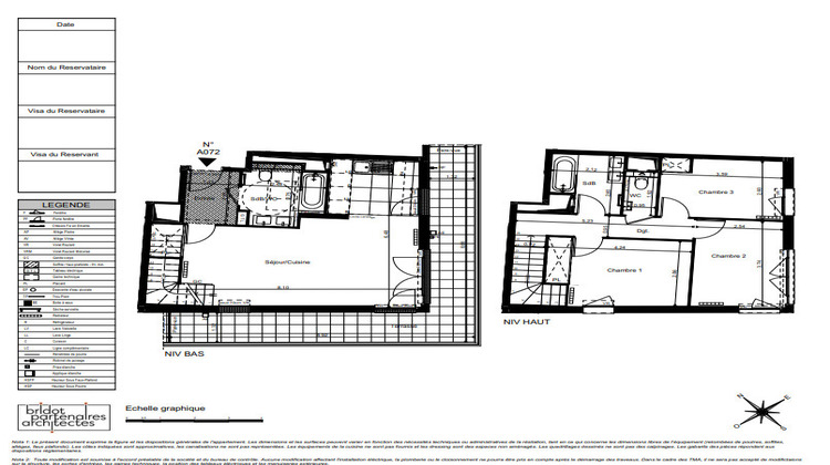
SURESNES - Superbe duplex lumineux terrasse bords de Seine et face au Bois de Boulogne et Bagatelle avec parking Idéalement située dans une résidence de standing, cette maison bénéficie d'un emplacement privilégié, à seulement 10 minutes à pied du tramway T2 « Belvédère », permettant de rejoindre la gare de La Défense en 12 minutes (RER A, ligne L, T2, métro ligne 1). Elle se trouve également à proximité immédiate de tous les commerces. Le R+7 est composé de : -d'une entrée -un vaste séjour avec cuisine ouverte exposé SUD-OUEST donnant directement sur une terrasse de 21m2 -une salle de bain avec WC On retrouve au R+8 : -trois chambres -une salle de bain avec double vasques -un WC Deux places de parking viennent compléter ce bien. Bâtiment basse consommation, très fables charges. Contactez Dominique Uber pour plus d'informations. Visuels non contractuels
- Type de bien : Appartement
- DPE : B - 51 à 90 kWh/².an
- GES : B - 6 à 10 kg eq CO2/².an
- Surface : 86 m²
- Localisation : France - ile-de-france - Hauts de Seine
- Ville : SURESNES
- Code postal : 92150
- Annonce créée le 02/12/2025






