Vente Appartement 92150, SURESNES france 905 000 €
Descriptif du bien
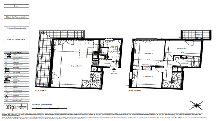
SURESNES - Magnifique T4 en duplex lumineux avec terrasses bords de Seine et face au Bois de Boulogne et Bagatelle avec parkings Idéalement située dans une résidence de standing, cette maison bénéficie d'un emplacement privilégié, à seulement 10 minutes à pied du tramway T2 « Belvédère », permettant de rejoindre la gare de La Défense en 12 minutes (RER A, ligne L, T2, métro ligne 1). Elle se trouve également à proximité immédiate de tous les commerces. Le R+5 est composé de : -d'une entrée -un vaste séjour avec cuisine ouverte exposé SUD-OUEST donnant directement sur une terrasse de 17m2 -une salle de bain avec WC On retrouve au R+6 : -trois chambres dont une avec balcon privatif -une salle de bain avec WC Deux places de parking viennent compléter ce bien. Bâtiment basse consommation, très fables charges. Contactez Dominique Uber pour plus d'informations. Visuels non contractuels
- Type de bien : Appartement
- DPE : B - 51 à 90 kWh/².an
- GES : B - 6 à 10 kg eq CO2/².an
- Surface : 97 m²
- Localisation : France - ile-de-france - Hauts de Seine
- Ville : SURESNES
- Code postal : 92150
- Annonce créée le 02/12/2025






