Vente Appartement 92150, SURESNES france 594 259 €
Descriptif du bien
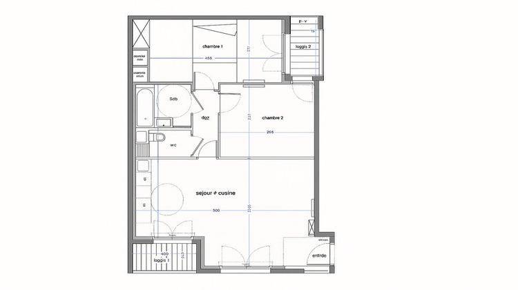
Suresnes – Centre-ville / Mont-Valérien. Ce bel appartement 3 pièces de 62,15 m², situé au 3ᵉ étage d'une résidence élégante, propose un cadre de vie moderne et pratique, au calme, tout en bénéficiant d'un accès immédiat aux commerces, aux transports et aux écoles. La pièce de vie de 28 m², très agréable, s'ouvre sur deux loggias offrant au total 6,45 m² d'espaces extérieurs. Ces loggias permettent de profiter d'un coin repas, d'un espace détente ou d'un bureau ouvert, été comme hiver. Le séjour et la cuisine ouverte offrent un volume confortable, facile à meubler et très lumineux. L'espace nuit se compose de deux chambres bien proportionnées : une chambre principale de 13,45 m² et une seconde de 9,30 m². La salle de bain est fonctionnelle, avec des matériaux contemporains, et le WC séparé apporte un réel confort au quotidien. Les prestations de l'appartement sont de belle qualité : parquet dans les pièces sèches, carrelage 60x60 dans les pièces d'eau, volets roulants électriques, bonne isolation thermique et phonique, porte d'entrée sécurisée, digicode et visiophone. L'ensemble assure un confort durable et une facilité d'entretien. La localisation est particulièrement pratique : mairie à environ 250 m, marché Zola et commerces entre 100 et 350 m, Hôpital Foch à 600 m, Parc du Château à 800 m. La gare Suresnes–Mont-Valérien (lignes L et U) est située à environ 650 m, le tram T2 est facilement accessible, et de nombreuses lignes de bus desservent le quartier. Future ligne 15 du Grand Paris Express en développement. Le secteur est recherché pour sa vie familiale : école d'Estienne d'Orves, école privée Saint-Leufroy et de nombreux établissements maternelles, primaires et secondaires sont accessibles à pied. Un environnement idéal pour un couple ou une petite famille. Appartement parfait en résidence principale ou pour un investissement patrimonial. Visuels non contractuels – Résidence neuve de standing – Charges maîtrisées – Frais de notaire réduits – Plans et renseignements : 06.63.07.06.63 Les informations sur les risques auxquels ce bien est exposé sont disponibles sur le site Géorisques : www. georisques. gouv. fr. Réseau Immobilier CAPIFRANCE - Votre agent commercial (RSAC N°391 328 549 - Greffe de NANTERRE) Caroline UZAN Entrepreneur Individuel à Responsabilité Limitée 06 63 07 06 63 - Réf.304121
- Type de bien : Appartement
- Surface : 62 m²
- Localisation : France - ile-de-france - Hauts de Seine
- Ville : SURESNES
- Code postal : 92150
- Annonce mise à jour le 07/02/2026





