Vente Appartement 94370, Sucy-en-Brie france 403 600 €
1 / 4
Descriptif du bien
Sucy-en-Brie
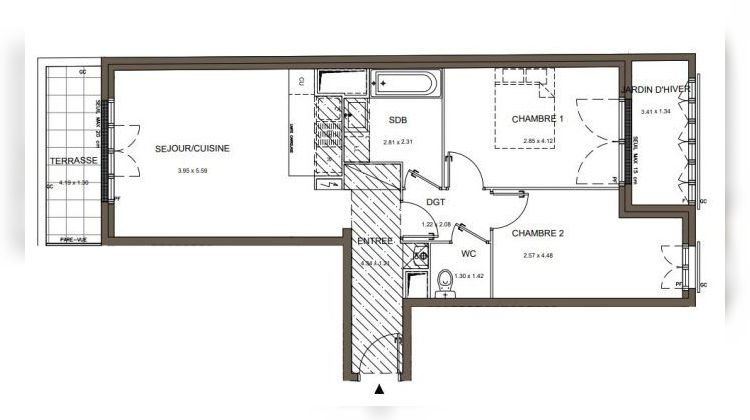
Appartement neuf T3 orienté Sud-Ouest au 2e étage
Surface habitable : 59,04m2 / Surface totale : 69,06m2
Comprenant hall d'entrée, séjour/cuisine, deux chambres, une salle de bains, un WC indépendant, un dégagement, une terrasse et un jardin d'hiver.
Prestations :
- carrelage dans les pièces humides et sols souples dans les chambres
- faïence murale toute hauteur au pourtour des baignoires et des bacs à douche
- robinetterie de type mitigeur dans les salles d'eau et les salles de bains
- prise Rj45(TV/internet/téléphone) dans le séjour et chambres
Honoraires à la charge du vendeur. DPE vierge Nos honoraires : https://files.netty.immo/file/sellingimmo/honoraires
- Type de bien : Appartement
- Surface : 59 m²
- Localisation : France - ile-de-france - Val de Marne
- Ville : Sucy-en-Brie
- Code postal : 94370
- Annonce créée le 12/12/2023



