Vente Appartement 67000, Strasbourg france 199 950 €
Descriptif du bien
Vous cherchez un investissement? Nous vous proposons une adresse !
APPARTEMENTIDEAL POUR UN PLACEMENT SÛR.
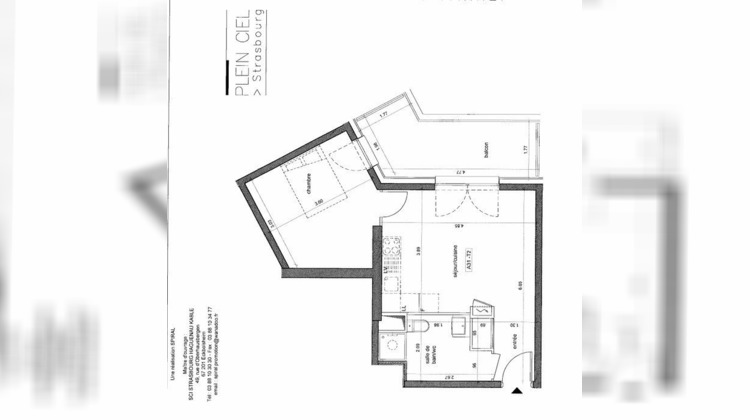
Il est situé au 3eme étage avec ascenseur d'un immeuble neuf situé Place de Haguenau, ' RESIDENCE PLEIN CIEL' ce bel appartement 2P de 40m2 + 10m2 de terrasse.
La locataire en place est seireuse et prend soin du logement.
Il vous est proposé à la vente avec une cave.
Prix de vente : 199 950 Frais d'agence inclus
Pour tout renseignement, contactez Florence GALLIOT 0609803969
Honoraires inclus de 5.24% TTC à la charge de l'acquéreur. Prix hors honoraires 190 000 . Dans une copropriété de 270 lots. Quote-part moyenne du budget prévisionnel 1 800 /an. Aucune procédure n'est en cours. Classe énergie B, Classe climat A. Montant moyen estimé des dépenses annuelles d'énergie pour un usage standard, établi à partir des prix de l'énergie de l'année 2017 : 1977.00 . Date de réalisation du DPE : 15-06-2017. Les informations sur les risques auxquels ce bien est exposé sont disponibles sur le site Géorisques : georisques.gouv.fr.
Votre conseiller B&H IMMOBILIER : Florence GALLIOT
Agent commercial (Entreprise individuelle)
RSAC 880723275
RCP ALLIANZ
- Type de bien : Appartement
- DPE : B - 51 à 90 kWh/².an
- GES : A -< 6 kg eq CO2/².an
- Surface : 40 m²
- Localisation : France - Grand Est - Rhin (Bas)
- Ville : Strasbourg
- Code postal : 67000
- Annonce créée le 17/04/2026




