Vente Appartement 67000, Strasbourg france 350 000 €
Descriptif du bien
Iad France - Pierre-Olivier Gasser vous propose : EXCLUSIVITE / A REHABILITER / 3 OU 4 CHAMBRES / JARDIN PRIVATIF AVEC ANNEXE /
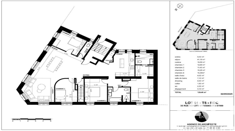
Situé au rez-de-chaussée du 35 rue Schott à la Robertsau dans un immeuble de 1910, cet appartement spacieux de 129 m² avec jardin est une chance unique à saisir pour les amateurs de beaux projets de rénovation.
Vous aurez le libre choix de l'aménagement, avec par exemple un grand espace de vie de 50 m² offrant de multiples possibilités d'aménagement, jusqu'à 4 chambres lumineuses (dont une suite parentale avec salle d'eau privative. et dressing), une seconde salle de bain et un WC indépendant.
Le mode de chauffage retenu (pompe à chaleur, climatisation réversible ou autre) par le futur propriétaire impactera très positivement le futur DPE.
Cet appartement comprend également
- un grand jardin privatif de 92 m² (avec une annexe couverte pouvant servir de spa ou tout autre usage)
- une très belle cave de 62 m² communiquant avec l'appartement (et également un accès par le jardin, pouvant également être aménagée selon vos désirs.
- un stationnement extérieur
Travaux de copropriété inclus (en cours de réalisation) :
- Façade entièrement rénovée
- Parties communes neuves
- Toiture et zinguerie révisée
- Réseaux d'eaux et d'électricité mis à neuf et aux normes jusqu'à l'appartement.
Montage financier :
- Prix d'acquisition : 350 000 ¤
- Budget travaux copropriété : 54 541 ¤
- Prix Global : 404 451¤
Le propriétaire actuel pourra également vous accompagner si vous le souhaitez.
Ce projet plein de charme nécessite une rénovation complète pour révéler tout son potentiel.
Contactez-nous sans tarder pour visiter et laisser libre cours à votre imagination pour réinventer cet espace unique.
La presente annonce immobiliere vise 2 lots situés dans une copropriété de 8 lots au total et ne faisant l'objet d'aucune procédure en cours citée à l'article L. 721-1 du code de la construction et de l'habitation. Montant moyen mensuel de charges déclaré par le vendeur : 50¤ par mois (soit 600 ¤ annuel). Honoraires d'agence à la charge du vendeur.
Information d'affichage énergétique sur ce bien : classe ENERGIE E indice 260 et classe CLIMAT E indice 56. Les informations sur les risques auxquels ce bien est exposé, y compris l'obligation légale de débroussaillement, sont disponibles sur le site Géorisques : http://www.georisques.gouv.fr.
La présente annonce immobilière a été rédigée sous la responsabilité éditoriale de M Pierre-Olivier Gasser mandataire indépendant en immobilier (sans détention de fonds), agent commercial de la SAS I@D France immatriculé au RSAC de STRASBOURG sous le numéro 431474725, titulaire de la carte de démarchage immobilier pour le compte de la société I@D France SAS.Informations LOI ALUR : Soumis au régime de copropriété. Nombre de lots : 8. Quote part annuelle(moyenne) : 600 euros. Honoraires charge vendeur. (gedeon_6727_33072156)
- Type de bien : Appartement
- DPE : E - 231 à 330 kWh/².an
- GES : E - 36 à 55 kg eq CO2/².an
- Surface : 129 m²
- Localisation : France - Grand Est - Rhin (Bas)
- Ville : Strasbourg
- Code postal : 67000
- Annonce créée le 16/04/2026





