Vente Appartement 93240, Stains france 95 000 €
Descriptif du bien
Iad France - Sandrine Rengassamy vous propose : Studio à Stains - À seulement 7 minutes à pied de la gare RER D et du tram 11 !
Cet appartement serait idéal pour une belle rentabilité locative !
Location possible jusqu'à 800 euros par mois.
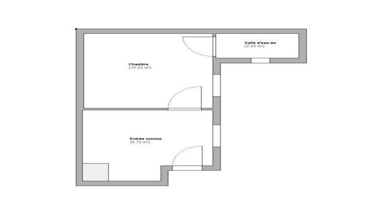
Appartement de 22 m² situé au rez-de-chaussée d'une petite copropriété à taille humaine. Il se compose d'une entrée, d'un séjour avec coin cuisine, d'une pièce pouvant servir de chambre, et d'une salle d'eau avec WC. Une cave complète ce bien.
Les points forts de cet appartement :
- Emplacement de choix ! Tout est accessible à pied (commerces, salle de sport, boulangerie, gare, commissariat).
- Charges faibles (seulement 200 ¤ / an, soit environ 16 ¤ par mois), avec une taxe foncière de 602 ¤.
- Agencement optimisé permettant de maximiser l'espace.
- Cave supplémentaire pour du stockage.
Attention appartement nécessitant des travaux d'isolation, double vitrage et les travaux de rafraîchissement.
Certaines photos sont des idées d'aménagement une fois les travaux effectués.
Visites possibles tous les jours de 9h à 19h.
Je suis ouverte aux partages.
La presente annonce immobiliere vise 2 lots situés dans une copropriété de 9 lots au total et ne faisant l'objet d'aucune procédure en cours citée à l'article L. 721-1 du code de la construction et de l'habitation. Montant moyen mensuel de charges déclaré par le vendeur : 16.67¤ par mois (soit 200 ¤ annuel). Honoraires d'agence à la charge du vendeur.
Information d'affichage énergétique sur ce bien : classe ENERGIE G indice 665 et classe CLIMAT C indice 22. Les informations sur les risques auxquels ce bien est exposé, y compris l'obligation légale de débroussaillement, sont disponibles sur le site Géorisques : http://www.georisques.gouv.fr.
La présente annonce immobilière a été rédigée sous la responsabilité éditoriale de Mme Sandrine Rengassamy mandataire indépendant en immobilier (sans détention de fonds), agent commercial de la SAS I@D France immatriculé au RSAC de PONTOISE sous le numéro 889144705, titulaire de la carte de démarchage immobilier pour le compte de la société I@D France SAS.
Informations LOI ALUR :
Soumis au régime de copropriété.
Nombre de lots : 9.
Quote part annuelle(moyenne) : 200 euros.
Honoraires charge vendeur. (gedeon_6727_32693219)
- Type de bien : Appartement
- DPE : G -> 450 kWh/².an
- GES : C - 11 à 20 kg eq CO2/².an
- Surface : 22 m²
- Localisation : France - ile-de-france - Seine Saint Denis
- Ville : Stains
- Code postal : 93240
- Annonce créée le 19/02/2026


