Vente Appartement 76300, SOTTEVILLE-LES-ROUEN france 223 000 €
Descriptif du bien
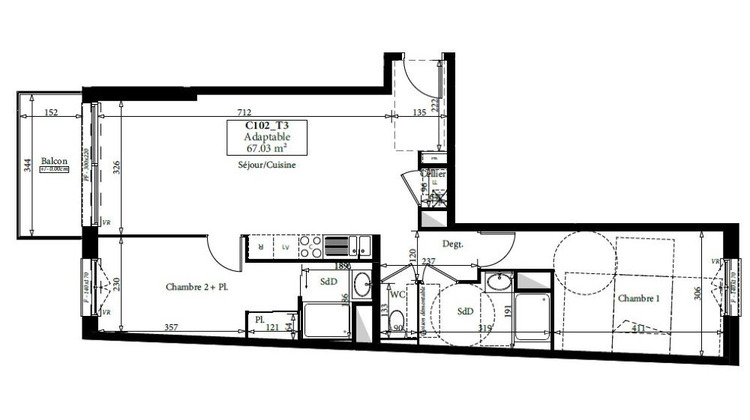
SOTTEVILLE LES ROUEN - Rue Pierre Corneille. Emplacement idéal, proche de toutes commodités. Ce bel appartement T3 d'une superficie de 67,45 m² Carrez se situe au 1er étage d'une résidence de 2025. Il se compose : - d'un séjour avec cuisine ouverte aménagée de 30 m² - d'un balcon de 5,70 m² - d'une chambre de 11 m² avec sa salle d'eau attenante - d'une seconde chambre de 13 m² - d'une seconde salle d'eau - d'un WC indépendant Une place de parking privative complète ce bien. Chauffage individuel gaz. Ses atouts : Proche des commerces et des transports, résidence neuve, prestations, balcon et parking sous-sol. Copropriété de 137 lots - dont 69 lots habitation.(Pas de procédure en cours).
- Type de bien : Appartement
- DPE : C - 91 à 150 kWh/².an
- GES : C - 11 à 20 kg eq CO2/².an
- Surface : 67 m²
- Localisation : France - Normandie - Seine Maritime
- Ville : SOTTEVILLE-LES-ROUEN
- Code postal : 76300
- Annonce créée le 06/01/2026









