Vente Appartement 01420, SEYSSEL france 213 800 €
Descriptif du bien
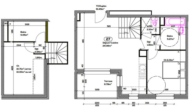
Ce charmant duplex de 61,45 m², situé proche du Rhône à SEYSSEL, est à seulement 45 mns de Genève et d'Annecy. Il est au deuxième étage avec ascenseur. Vous profiterez d'une belle pièce de vie composée d'un séjour lumineux et d'une cuisine ouverte, parfaite pour des moments conviviaux. Une chambre spacieuse, une salle de bain et un WC indépendant complètent ce niveau. À l'étage, une seconde chambre vous attend, accompagnée d'une salle d'eau, offrant confort et intimité. Pour vos moments de détente, une terrasse privative vous permettra de profiter des beaux jours. Une place de parking et un garage peuvent être acquis en supplément. Idéal pour une résidence principale ou un investissement locatif, ce bien est une opportunité à ne pas manquer. Ensemble immobilier prévu pour le 4ème trimestre 2026. A env. 45 mns d'Annecy et de Genève. Pour toute information, n'hésitez pas à m'appeler. A bientôt. Les informations sur les risques auxquels ce bien est exposé sont disponibles sur le site Géorisques : www. georisques. gouv. fr. Réseau Immobilier CAPIFRANCE - Votre agent commercial (RSAC N°851 001 537 - Greffe de CHAMBERY) Flora ULMSCHNEIDER Entrepreneur Individuel 06 34 42 48 47 - Réf.304121
- Type de bien : Appartement
- Surface : 61 m²
- Localisation : France - Auvergne-Rhône-Alpes - Ain
- Ville : SEYSSEL
- Code postal : 01420
- Annonce créée le 06/12/2025



