Vente Appartement 92310, Sevres france 390 000 €
Descriptif du bien
Situé dans l'ouest parisien, à proximité de Boulogne, sur la commune de Sèvres, dans le secteur recherché et verdoyant de la Croix-Bosset, au calme. À seulement 8 minutes à pied de la gare Transilien Rive Droite (lignes L et U La Défense en 13 min, Saint-Lazare en 25 min), 20 minutes de la gare Rive Gauche (ligne N Montparnasse en 15 min) et à 10 minutes en bus du métro ligne 9, du tramway T2 et de la future ligne 15 du Grand Paris Express.
À proximité immédiate du centre-ville, des commerces, des commodités et du parc de Saint-Cloud.
Dans une résidence de standing sécurisée, de faible hauteur, avec gardienne, tennis privatif récemment rénové et beaux jardins arborés.
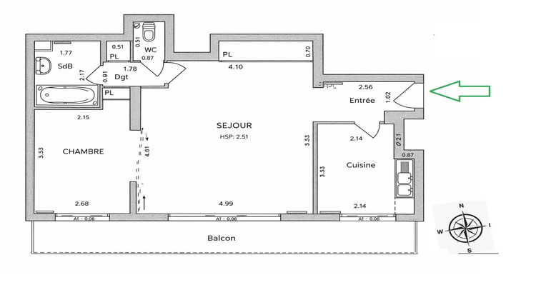
Appartement lumineux de 2 pièces, 59 m², en bon état général (DPE D). Il se compose d'un séjour avec grand placard, ouvrant par baies vitrées sur un large balcon filant de 14,5 m² exposé plein sud avec vue dégagée sur les coteaux, d'une cuisine indépendante aménagée, d'une chambre, d'un dégagement avec WC séparés et rangements, ainsi que d'une belle salle d'eau.
Chauffage et eau (chaude et froide) inclus dans les charges.
En sous-sol : une grande cave saine et une place de stationnement complètent ce bien. Local vélos et espaces de stockage supplémentaires dans la copropriété
Le bien comprend 3 lots, et il est situé dans une copropriété de 50 lots (les charges courantes annuelles moyennes de copropriété sont de 3600 ¤ et le syndicat des copropriétaires ne fait pas l'objet d'une procédure citée à l'article L. 721-1 du code de la construction et de l'habitation).
Les informations sur les risques auxquels ce bien est exposé sont disponibles sur le site Géorisques : www.georisques.gouv.fr
Prix de vente : 390 000 ¤
Honoraires charge vendeur
Contactez votre conseiller SAFTI : Bruno JAFFRÉ, Tél. : 06 22 13 05 59, E-mail : bruno.jaffre@safti.fr - EI - Agent commercial immatriculé au RSAC de PARIS sous le numéro 405 246 737.Informations LOI ALUR : Soumis au régime de copropriété. Nombre de lots : 50. Quote part annuelle(moyenne) : 3600 euros. Honoraires charge vendeur. (gedeon_26118_33071118)
- Type de bien : Appartement
- DPE : D - 151 à 230 kWh/².an
- GES : D - 21 à 35 kg eq CO2/².an
- Surface : 59 m²
- Localisation : France - ile-de-france - Hauts de Seine
- Ville : Sevres
- Code postal : 92310
- Annonce créée le 16/04/2026





