Vente Appartement 34200, SETE france 409 900 €
Descriptif du bien
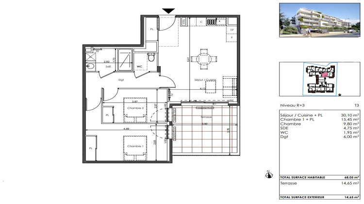
Résidence située au sud en aval du Mont Saint Clair en face de la Méditerranée. T3 lumineux de 68 m², et prolongé sur une terrasse exposée Sud. Un agencement agréable de plain pied pour la partie habitable avec un spacieux séjour, et un espace nuit composé de 2 chambres avec rangement ainsi qu'une salle d'eau équipée. Accès entièrement sécurisé. 1 place de parking privative en sous-sol. A quelques mètres de la plage dans le quartier prisé de la Corniche. Proche du théâtre de la mer et de l'Espace Georges BRASSENS. Ne tardez pas à prendre des renseignements. Prix de vente : 409 900 euros (honoraires à la charge du vendeur). Me contacter pour plus d'informations, plans (parkings, plan de masse ) et notice descriptive complète sur demande. Photos non contractuelles, DPE non requis. Selon l'article L.561.5 du Code Monétaire et Financier, pour l'organisation de la visite, la présentation d'une pièce d'identité vous sera demandée. Pour visiter et vous accompagner dans votre projet, contactez Michel HORNECKER, au 0699405021 ou par courriel à m.hornecker@proprietes-privees.com Cette présente annonce a été rédigée sous la responsabilité éditoriale de Michel HORNECKER agissant sous le statut d'agent commercial immatriculé au RSAC BEZIERS 824 253 710 spécialisé en cession de fonds de commerces , auprès de la SAS PROPRIETES PRIVEES, Réseau national immobilier, au capital de 40000 euros, 44 ALLÉE DES CINQ CONTINENTS - ZAC LE CHÊNE FERRÉ, 44120 VERTOU, RCS Nantes n° 487 624 777 00040, Carte professionnelle T et G n° CPI 4401 2016 000 010 388 CCI Nantes-Saint Nazaire. Garantie GALIAN - 89 rue de la Boétie, 75008 Paris Mandat réf : 365530 - Le professionnel garantit et sécurise votre projet immobilier. Michel HORNECKER (EI) Agent Commercial - Numéro RSAC : BEZIERS 824 253 710 Les informations sur les risques auxquels ce bien est exposé sont disponibles sur le site Géorisques : www.georisques.gouv.fr Copropriété de 255 lots - dont 108 lots habitation. (). Charges annuelles : 1 euros. Michel HORNECKER (EI) Agent Commercial - Numéro RSAC : BEZIERS 493044283 - .





