Vente Appartement 34200, SETE france 649 900 €
Descriptif du bien
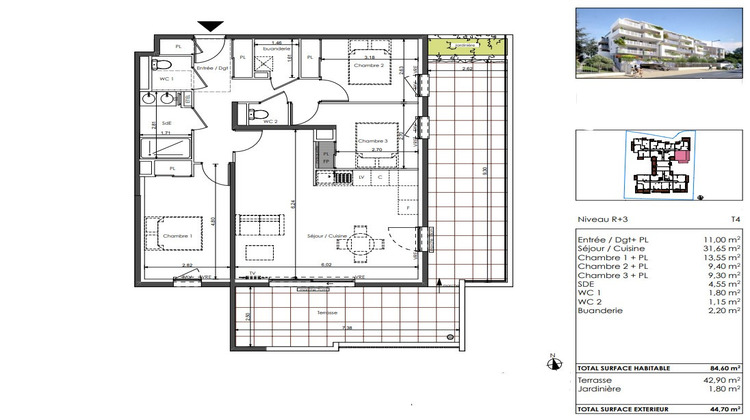
Située au sud, en aval du Mont Saint-Clair, cette résidence sécurisée bénéficie d'un emplacement exceptionnel, face à la mer, dans le quartier très prisé de la Corniche à Sète. Ce T3 spacieux de plus de 84 m² séduit par sa luminosité et son agencement de plain-pied. Grand séjour ouvrant sur une terrasse plein sud offrant une superbe vue. Espace nuit comprenant 3 chambres avec rangements intégrés. Salle d'eau équipée moderne et fonctionnelle. La résidence propose un accès entièrement sécurisé ainsi que deux places de parking privatives en sous-sol. A quelques mètres de la plage, proche du Théâtre de la Mer et de l'Espace Georges Brassens, cet appartement combine confort, sérénité et proximité des lieux emblématiques de Sète. Ne tardez pas à vous renseigner ! Prix de vente : 649 900 euros (honoraires vendeur). Me contacter pour plus d'informations, plans (parkings, plan de masse ) et notice descriptive complète sur demande. Photos non contractuelles, DPE non requis. Selon l'article L.561.5 du Code Monétaire et Financier, pour l'organisation de la visite, la présentation d'une pièce d'identité vous sera demandée. Pour visiter et vous accompagner dans votre projet, contactez Michel HORNECKER, au 0699405021 ou par courriel à m.hornecker@proprietes-privees.com Cette présente annonce a été rédigée sous la responsabilité éditoriale de Michel HORNECKER agissant sous le statut d'agent commercial immatriculé au RSAC BEZIERS 824 253 710 spécialisé en cession de fonds de commerces , auprès de la SAS PROPRIETES PRIVEES, Réseau national immobilier, au capital de 40000 euros, 44 ALLÉE DES CINQ CONTINENTS - ZAC LE CHÊNE FERRÉ, 44120 VERTOU, RCS Nantes n° 487 624 777 00040, Carte professionnelle T et G n° CPI 4401 2016 000 010 388 CCI Nantes-Saint Nazaire. Garantie GALIAN - 89 rue de la Boétie, 75008 Paris Mandat réf : 365530 - Le professionnel garantit et sécurise votre projet immobilier. Michel HORNECKER (EI) Agent Commercial - Numéro RSAC : BEZIERS 824 253 710 Les informations sur les risques auxquels ce bien est exposé sont disponibles sur le site Géorisques : www.georisques.gouv.fr Copropriété de 255 lots - dont 108 lots habitation. (). Charges annuelles : 1 euros. Michel HORNECKER (EI) Agent Commercial - Numéro RSAC : BEZIERS 493044283 - .





