Vente Appartement 34200, SETE france 129 167 €
Descriptif du bien
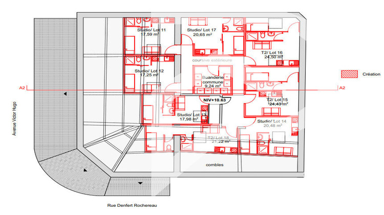
" Spécial Investisseurs " Achat au prix de 129 167 euros HT avec récupération de la TVA Une nouvelle résidence étudiante voit le jour à Sète, en collaboration avec la mairie de Sète, sur notre belle Avenue Victor Hugo,15 lots sont disponibles dont ces 2 pièces de 26.31 m² et 26.50 m². Des appartements meublés avec services communs, à proximité du nouveau parking construit par la ville, du Théâtre Molière, ainsi que du nouvel IUT de Montpellier qui accueille aujourd'hui plus de 200 étudiants ! Une rentabilité annuelle garantie 9 ans de 5 455 euros HT pour ces 2 pièces, ainsi qu'une gestion encadrée par nos soins sur la totalité des lots. Pour voir la totalité des lots disponibles, rendez vous sur notre site : https://sete.stephaneplazaimmobilier.com/ Copropriété de 18 lots - dont 18 lots habitation.(Pas de procédure en cours).





