Vente Appartement 34200, SETE france 125 000 €
Descriptif du bien
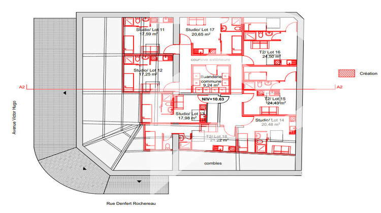
" Spécial Investisseurs " Achat au prix de 150 000 euros TTC avec récupération de la TVA Une nouvelle résidence étudiante voit le jour à Sète, en collaboration avec la mairie de Sète, sur notre belle Avenue Victor Hugo,15 lots sont disponibles dont ces 2 pièces : Lot 1 : 25, 37 m² Lot 3 : 27, 07 m² Lot 9 : 25, 22 m² Lot 10 : 25, 85 m² Lot 15 : 24, 43 m² Lot 16 : 24, 5 m² Des appartements meublés avec services communs, à proximité du nouveau parking construit par la ville, du Théâtre Molière, ainsi que du nouvel IUT de Montpellier qui à terme pourra accueillir plus de 200 étudiants ! Une rentabilité annuelle garantie 9 ans de 5 508 euros HT pour ces 2 pièces, ainsi qu'une gestion encadrée par nos soins sur la totalité des lots. Pour voir la totalité des lots disponibles, rendez vous sur notre site : https://sete.stephaneplazaimmobilier.com/ Copropriété de 18 lots (Pas de procédure en cours).





