Vente Appartement 74140, SCIEZ france 283 500 €
Descriptif du bien
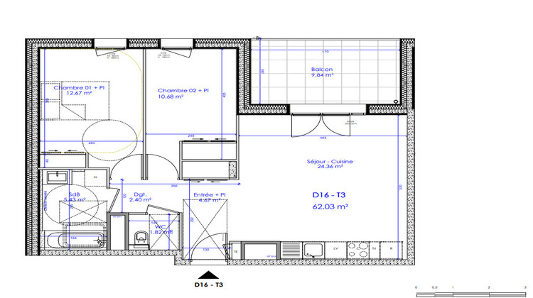
Jérôme Blandin-Sikli vous propose : idéal pour un investissement ou en résidence principale. Situé dans à Sciez sur Leman, la résidence vous offrira une situation de premier plan proche des commerces et écoles et transport. Je vous propose cet appartement T3, de 62 m² environ au R+1, se composant d'une entrée donnant sur pièce de vie avec cuisine ouverte avec balcon exposé nord/est , deux chambres, une salle d'eau et wc . Cet appartement est vendu avec un stationnement en sous-sol. Des prestations de standing, viennent compléter cet ensemble de qualité offrant un excellent niveau de confort moderne et d'isolation, ainsi que de faibles charges de copropriété. Disponibilité au 4ème trimestre 2025 Autres configurations de distribution interne possibles, me contacter pour plus d'informations. Photos non contractuelles. Pour visiter et vous accompagner dans votre projet, contactez Jérôme BLANDIN-SIKLI, au 0650851710 ou par courriel à j.blandinsikli@proprietes-privees.com Selon l'article L.561.5 du Code Monétaire et Financier, pour l'organisation de la visite, la présentation d'une pièce d'identité vous sera demandée. Cette présente annonce a été rédigée sous la responsabilité éditoriale de Jérôme BLANDIN-SIKLI agissant sous le statut d'agent commercial immatriculé au RSAC thonon les bains 483844122 auprès de la SAS PROPRIETES PRIVEES, au capital de 40 000 euros, ZAC LE CHÊNE FERRÉ - 44 ALLÉE DES CINQ CONTINENTS 44120 VERTOU; SIRET 487 624 777 00040, RCS Nantes. Carte professionnelle Transactions sur immeubles et fonds de commerce (T) et Gestion immobilière (G) n° CPI 4401 2016 000 010 388 délivrée par la CCI Nantes - Saint Nazaire. Compte séquestre n°30932508467 BPA SAINT-SEBASTIEN-SUR-LOIRE (44230) ; Garantie GALIAN - 89 rue de la Boétie, 75008 Paris - n°28137 J pour 2 000 000 euros pour T et 120 000 euros pour G. Assurance responsabilité civile professionnelle par MMA Entreprise n° de police 120.137.405 Mandat réf : 393 054. - Le professionnel garantit et sécurise votre projet immobilier. Copropriété de 371 lots (). Charges annuelles : 900 euros. Jérôme BLANDIN-SIKLI (EI) Agent Commercial - Numéro RSAC : thonon les bains 483844122 - .
- Type de bien : Appartement
- Surface : 62 m²
- Localisation : France - Auvergne-Rhône-Alpes - Savoie (Haute)
- Ville : SCIEZ
- Code postal : 74140
- Annonce créée le 01/02/2025





