Vente Appartement 44880, Sautron france 66 500 €
Descriptif du bien
Spécial Investisseur Exclusivité Forom® Immobilier
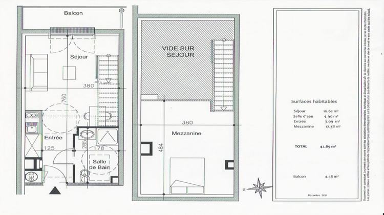
Appartement T2 en duplex au 2ème et 3ème étage d'environ 42,89 m² situé dans une résidence récente sur la commune de Sautron.
Le logement dispose d'un séjour, une cuisine, une salle d'eau avec WC, un balcon et une mezzanine avec un coin nuit.
Loyer entièrement garanti et sécurisé, aucune contrainte de gestion, faibles charges.
C'est le produit idéal pour se constituer facilement un patrimoine immobilier.
Loyer annuel HT : 5 815,8 / an soit 484,65 / mois
Rentabilité : 8,75% !
Charges : 109 / mois
Taxe foncière : 603 / an
Gestionnaire : Cap West avec date de fin de bail le 01/10/2031
DPE : C
Nombre de lots : 82
Honoraires charge vendeur
Les avantages
Les loyers sont réglés que le logement soit occupé ou non (sans risque de vacances locatives ou d'impayés). Vous bénéficiez également d'avantages fiscaux lié au « LMNP amortissable », donnant une exonération d'impôt sur les revenus locatifs. Vous aurez de faibles charges et aucuns soucis de gestion courante (le gestionnaire vous règle directement le loyer sans intermédiaire ni frais de gestion locative). Enfin, vous investissez dans un emplacement premium bien au-dessous du prix du marché.
La résidence
Résidence d'affaires récente gérée par Cap West, idéalement située à Sautron, aux portes de Nantes. Elle propose des appartements meublés avec kitchenette, balcon ou terrasse, parking privatif, ainsi que des services appréciés comme la salle de sport et la laverie.
Un bien parfaitement adapté à l'investissement locatif en LMNP, avec gestion déléguée, fiscalité avantageuse et forte demande de la part d'une clientèle professionnelle de passage.
Honoraires à la charge du vendeur. Dans une copropriété de 82 lots. Aucune procédure n'est en cours. Classe énergie C, Classe climat C Montant moyen estimé des dépenses annuelles d'énergie pour un usage standard, établi à partir des prix de l'énergie de l'année 2021 : entre 530.00 et 770.00 . Les informations sur les risques auxquels ce bien est exposé sont disponibles sur le site Géorisques : georisques.gouv.fr.
- Type de bien : Appartement
- DPE : D - 151 à 230 kWh/².an
- GES : C - 11 à 20 kg eq CO2/².an
- Surface : 42 m²
- Localisation : France - pays-de-la-loire - Loire Atlantique
- Ville : Sautron
- Code postal : 44880
- Annonce mise à jour le 24/04/2026

