Vente Appartement 44880, Sautron france 55 500 €
Descriptif du bien
Spécial Investisseur Forom® Immobilier
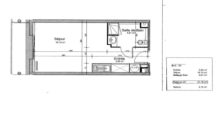
Forom Immobilier vous propose cet appartement T1 d'environ 27 m² au 1er étage situé dans une résidence type Affaires sur la commune de Sautron, gérée par la société Cap West.
Le logement dispose d'un séjour, une cuisine, une salle d'eau avec un WC et une place de parking.
Loyer entièrement garanti et sécurisé avec un bail commercial, aucune contrainte de gestion, faibles charges.
C'est le produit idéal pour se constituer facilement un patrimoine immobilier.
Loyer annuel HT : 4 343 / an soit 361 / mois
Rentabilité : 7,83% brute, soit 5,36% nette !
Révision triennale du loyer
Charges de copropriété : 82,41 / mois
Taxe foncière : 381 / an
Gestionnaire : Cap West avec date de fin de bail le 01/10/2031
DPE : C
Nombre de lots : 82
Honoraires charge vendeur
Les avantages
Les loyers sont réglés que le logement soit occupé ou non (sans risque de vacances locatives ou d'impayés).
Vous bénéficiez également d'avantages fiscaux liés au « LMNP amortissable », donnant une exonération d'impôt sur les revenus locatifs.
Aucun frais de gestion courante (le gestionnaire vous règle directement le loyer sans intermédiaire ni frais de gestion locative).
Emplacement premium bien au-dessous du prix du marché.
Honoraires à la charge du vendeur. Dans une copropriété de 82 lots. Aucune procédure n'est en cours. Classe énergie C, Classe climat A Montant estimé des dépenses annuelles d'énergie pour un usage standard : entre 440.00 et 650.00 sur les années 2021, 2022 et 2023 (abonnements compris). Les informations sur les risques auxquels ce bien est exposé sont disponibles sur le site Géorisques : georisques.gouv.fr.
- Type de bien : Appartement
- Surface : 27 m²
- Localisation : France - pays-de-la-loire - Loire Atlantique
- Ville : Sautron
- Code postal : 44880
- Annonce mise à jour le 20/02/2026

