Vente Appartement 13300, Salon-de-Provence france 228 000 €
Descriptif du bien
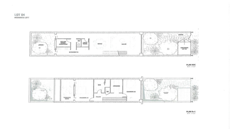
Votre agence 123webimmo l'immobilier au meilleur prix vous présente : En exclusivité, à seulement 10 minutes de Lambesc et 20 minutes de Salon-de-Provence, dans le sympatique village provençal de Charleval, découvrez un concept rare et intelligent : acquérir un loft en plateau viabilisé pour créer un intérieur totalement personnalisé. Issu de la transformation complète d'un ancien bâtiment industriel en une petite copropriété intimiste de 6 lots, ce duplex de 110 m² offre de superbes volumes à exploiter. Le bien est vendu viabilisé, avec les raccordements réalisés et les menuiseries déjà posées, ce qui vous permet de vous concentrer exclusivement sur l'aménagement intérieur et le second oeuvre selon vos envies. Vous disposerez également de 110 m² d'espaces extérieurs répartis en deux terrasses et jardins, ainsi que de deux places de stationnement privatives. Les charges de copropriété sont particulièrement faibles, environ 100 ¤ par an, ce qui renforce l'attractivité du projet. L'intérêt de cette acquisition est double : vous achetez à un prix optimisé en réservant les travaux intérieurs à votre rythme. Le bien est également éligible au PTZ. Une opportunité concrète pour devenir propriétaire avec des mensualités maîtrisées et un bien entièrement à votre image. Situé à proximité du centre du village de Charleval, dans un environnement agréable, ce loft s'adresse aussi bien à une résidence principale qu'à un projet patrimonial à forte valeur ajoutée après aménagement. Contactez-moi pour plus d'informations et une étude personnalisée de votre projet. N'hésitez pas à venir faire la visite virtuelle 3D / 360° sur notre site internet ! Les informations sur les risques auxquels ce bien est exposé sont disponibles sur le site du gouvernement.Informations LOI ALUR : Soumis au régime de copropriété. Nombre de lots : 6. Quote part annuelle(moyenne) : 100 euros. Honoraires charge vendeur. (gedeon_25727_32798419)
- Type de bien : Appartement
- Surface : 110 m²
- Localisation : France - provence-alpes-cote-d-azur - Bouche-du-Rhone
- Ville : Salon-de-Provence
- Code postal : 13300
- Annonce créée le 05/03/2026





